
Gerken Immobilien, Inh. Tilman Gerken
Frau Tilman Gerken
061 ···
Nr. anzeigenPreise & Kosten
Provision für Käufer
3,57% des Kaufpreises fällig mit Kaufvertragsunterschrift inkl. MwSt.
Lage
Wörrstadt liegt im Landkreis Alzey-Worms und gehört zur wirtschaftsstarken Rhein-Main-Region. Der Ort bietet eine hervorragende Infrastruktur mit Einkaufsmöglichkeiten, Schulen, Kitas und Ärzten vor Ort. Über die nahegelegene A63 erreichen Sie Mainz und Wiesbaden in etwa 20 Minuten, Frankfurt in rund 40 Minuten.
Die...
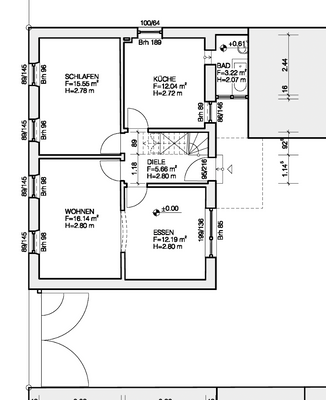
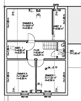
Das Haus
Baujahr
1891
Energie & Heizung
Warum sehe ich diese Anzeige? – Du siehst diese Anzeige basierend auf Ihrer Navigation auf unserer Website und den Suchkriterien, die du verwendet hast.
Energieausweistyp
Bedarfsausweis
Gebäudetyp
Wohngebäude
Baujahr laut Energieausweis
1891
Gültigkeit
12.03.2017 bis 11.03.2027
Effizienzklasse
H
Endenergiebedarf
456,00 kWh/(m²·a)
Details
Objektbeschreibung
Besondere Highlights:
Historische Substanz (Baujahr 1891)
Fränkische Hofbauweise mit charmantem Innenhof
Großes Nebengebäude & Scheune
Grundstück im hinteren Bereich
Viel Potenzial für Handwerker, Investoren oder Liebhaber historischer Gebäude
Ausstattung
Willkommen in Wörrstadt - einem charmanten Ort im Herzen Rheinhessens. Angeboten wird ein historisches Anwesen in fränkischer Hofbauweise aus dem Baujahr 1891. Das Ensemble besteht aus einem Wohnhaus, alten Stallungen, einer großen Scheune sowie einem dahinterliegenden Grünstück. Insgesamt umfasst das Anwesen eine großzügige...
Anbieter der Immobilie
Gerken Immobilien, Inh. Tilman Gerken
Hintergasse 42, 65239 Hochheim am Main
Online-ID: 2p8ax52
Referenznummer: WOERBEST26top5
Finde Angebote wie dieses
Hier geht es zu unserem Impressum, den Allgemeinen Geschäftsbedingungen, den Hinweisen zum Datenschutz und nutzungsbasierter Online-Werbung.