

Jan Schmolke Immobilien & Investments
Herr Ralf Tebbert
004 ···
Nr. anzeigenPreise & Kosten
Provision für Käufer
3,57% inkl. MwSt.
Lage
Die Immobilie befindet sich in besonders ruhiger und familienfreundlicher Lage in Bad Zwischenahn, im Ortsteil Rostrup, am Ende einer verkehrsberuhigten Sackgasse. Die Umgebung ist geprägt von gepflegter Wohnbebauung und bietet ein angenehmes, naturnahes Wohnumfeld.
Ein besonderer Pluspunkt ist die Nähe zum...
Das Haus
Kategorie
Doppelhaushälfte
Baujahr
1937
Bezug
nach Vereinbarung
Energie & Heizung
Warum sehe ich diese Anzeige? – Du siehst diese Anzeige basierend auf Ihrer Navigation auf unserer Website und den Suchkriterien, die du verwendet hast.
Energieausweistyp
Bedarfsausweis
Gebäudetyp
Wohngebäude
Baujahr laut Energieausweis
2009
Wesentliche Energieträger
ERDGAS_LEICHT
Gültigkeit
bis 24.06.2032
Effizienzklasse
E
Endenergiebedarf
144,50 kWh/(m²·a)
Weitere Energiedaten
Haustyp
Massivhaus
Energieträger
Gas
Heizungsart
offener Kamin
Details
Objektbeschreibung
Diese von uns exklusiv angebotene Doppelhaushälfte aus dem Jahr ca. 1937 überzeugt durch ihren gepflegten Gesamtzustand, eine durchdachte Raumaufteilung sowie vielseitige Nutzungsmöglichkeiten. Auf einem großzügigen Eigentumsgrundstück von ca. 539 m² bietet die Immobilie eine Wohnfläche von ca. 111 m².
Bereits beim...
Ausstattung
Doppelhaushälfte
- Baujahr: 1937
- Grundstücksgröße: ca. 539 m²
- Wohnfläche: ca. 111,31 m²
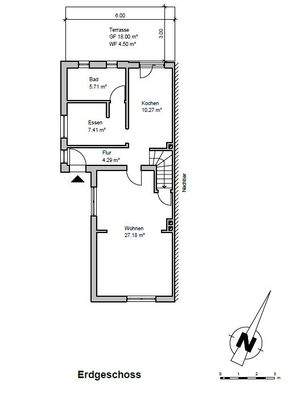
Erdgeschoss:
- 1 Wohnzimmer mit Kaminofen
- Küche mit Einbauküche sowie Zugang zur Terrasse
- Essecke
- Badezimmer mit Dusche
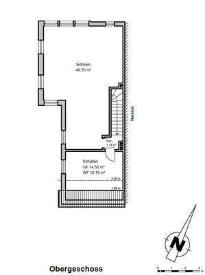
Obergeschoss:
- 1 Großer heller Wohnraum
- 1 Schlafzimmer...
Preisinformation
1 Carportplatz
1 Stellplatz
Weitere Informationen
Sonstiges
Wir freuen uns auf Ihre SCHRIFTLICHE Anfrage. Im Anschluss erhalten Sie automatisch das Exposé zum Objekt.
Bitte haben Sie Verständnis dafür, dass im Rahmen der Automatisierung auf explizite Rückfragen innerhalb der Anfrage keine individuelle Rückmeldung erfolgen kann.
Wir bitten Sie, die in der...
Dokumente
Anbieter der Immobilie

Online-ID: 2p7yh55
Referenznummer: 1242
Finde Angebote wie dieses
Hier geht es zu unserem Impressum, den Allgemeinen Geschäftsbedingungen, den Hinweisen zum Datenschutz und nutzungsbasierter Online-Werbung.