
Seibel Immobilien GbR
Herr/Frau Paul Seibel
041 ···
Nr. anzeigenPreise & Kosten
Kaution
3741
Warum sehe ich diese Anzeige? – Du siehst diese Anzeige basierend auf Ihrer Navigation auf unserer Website und den Suchkriterien, die du verwendet hast.
Lage
Die Wohnung befindet sich im beliebten Hofquartier Amelinghausen, ruhig gelegen und dennoch zentral. Einkaufsmöglichkeiten, Ärzte, Natur und Nahverkehr sind bequem erreichbar – ideal für komfortables Wohnen in jedem Lebensabschnitt.
Die Wohnung
Kategorie
Maisonette
Wohnungslage
1. Geschoss
Bezug
01.09.2026
Wohnanlage
Energie & Heizung
Warum sehe ich diese Anzeige? – Du siehst diese Anzeige basierend auf Ihrer Navigation auf unserer Website und den Suchkriterien, die du verwendet hast.
Weitere Energiedaten
Energieträger
Elektro
Heizungsart
Fußbodenheizung, Luft-/Wasser-Wärmepumpe, Zentralheizung
Details
Objektbeschreibung
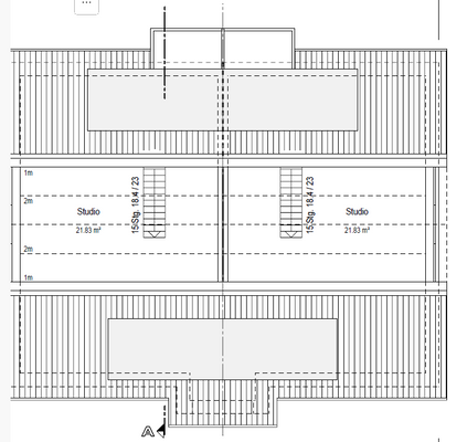
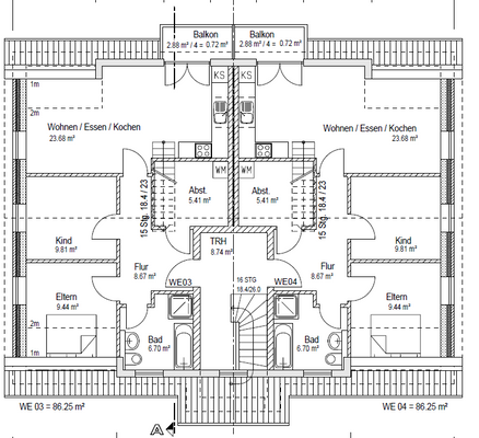
In der modernen Wohnanlage Hofquartier Amelinghausen entsteht diese großzügige 3 Zimmer Obergeschosswohnung mit zusätzlichem Dachstudio und insgesamt ca. 86 m² Wohnfläche. Ideal für alle, die Wert auf Raum, Komfort und ein hochwertiges Wohnumfeld legen.
-------------------------------------------------
Energie:
• Art...
Ausstattung
Highlights der Wohnung:
• Großzügiger Wohn /Essbereich mit viel Tageslicht und Balkon
• Ebenerdige Dusche, stufenloser Terrassenaustritt
• Zusätzliches Dachstudio – ideal als Arbeitsbereich, Hobbyraum oder Rückzugsort
• Offene Küche mit moderner Einbauküche (EBK)
• Helle Wohnräume durch große...
Weitere Informationen
Sonstiges
• Insgesamt gehen nach Fertigstellung 14 Wohnungen in Vermietung
• Sieben Terrassenwohnungen im Erdgeschoss, 3 Zimmer (61 – 79 m2)
• und Sieben im Obergeschoss, 3 Zimmer und Dachstudio (75 – 93 m2)
• Besichtigungstermine nach Vereinbarung.
• Zwischenverkauf und Irrtümer...
Anbieter der Immobilie
Seibel Immobilien GbR
Memeler Straße 28, 21337 Lüneburg
Online-ID: 2p7u653
Referenznummer: 0215OG-2026
Finde Angebote wie dieses
Hier geht es zu unserem Impressum, den Allgemeinen Geschäftsbedingungen, den Hinweisen zum Datenschutz und nutzungsbasierter Online-Werbung.