
ohne-makler.net - Immobilien selbst vermarkten
Privat von Michael Hoffmann
Kontaktiere den Anbieter schriftlich, es ist keine Telefonnummer hinterlegt.
Preise & Kosten
nicht in Warmmiete enthalten
Kaution
3.500,00
Warum sehe ich diese Anzeige? – Du siehst diese Anzeige basierend auf Ihrer Navigation auf unserer Website und den Suchkriterien, die du verwendet hast.
Lage
Das Objekt befindet sich in absoluter Ortsrandlage von Feldafing, Ortsteil Wieling. Die Ortsrandlage mit östlich angrenzenden Wiesen und Feldern ist vor allem für Sport- und Naturliebhaber ideal. Südlich grenzt ein wenig benutzter asphaltierter Wendehammer an.
Die 2 bzw. 3 km entfernten Orte Feldafing und Pöcking verfügen...
Die Wohnung
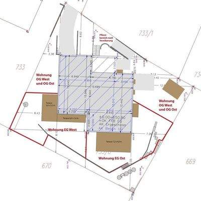
Wohnungslage
Erdgeschoss
Bezug
01.07.2026
Wohnanlage
Energie & Heizung
Warum sehe ich diese Anzeige? – Du siehst diese Anzeige basierend auf Ihrer Navigation auf unserer Website und den Suchkriterien, die du verwendet hast.
Energieausweistyp
Bedarfsausweis
Gebäudetyp
Wohngebäude
Effizienzklasse
A+
Endenergiebedarf
14,00 kWh/(m²·a)
Weitere Energiedaten
Energieträger
Erdwärme
Heizungsart
Fußbodenheizung
Details
Objektbeschreibung
Das Objekt gehört zu einem 2016 fertiggestellten Neubau mit vier Mietwohnungen. Der Energiestandard des Gebäudes entspricht einem Effizienz-Haus 55, Energieeffizienz-Klasse A +.
Die Wohnung befindet sich im Erdgeschoss und beinhaltet eine große, helle Wohnküche. Neben der Wohnküche existiert ein Schlafzimmer und ein...
Ausstattung
Terrasse, Garten, Keller, Einbauküche, Parkett
Bemerkungen:
Fußbodenheizung in allen Wohnräumen.
Hochwertig ausgestattetes Badezimmer mit ebenerdiger Dusche, Waschbecken, WC, Handtuchheizung und Waschmaschinen-Anschluss.
Warmwasserbereitung mittels Elektro-Durchlauferhitzer. Warmwasser ist somit nicht in den...
Preisinformation
1 Carportplatz, Miete: 65,00 EUR
1 Tiefgaragenstellplatz, Miete: 65,00 EUR
Nettokaltmiete: 1.251,00 EUR
Weitere Informationen
Sonstiges
Heizungsart: Fußbodenheizung
Energieträger: Erdwärme
Die Abbildungen des Inneren der Wohnung stammen aus der gegenüberliegenden westliche EG-Wohnung, passen also nicht exakt zum Grundrissplan. Insbesondere die Küche sieht anders aus.
Im Mietvertrag ist Indexmiete obligatorisch. In der Vergangenheit...
Dokumente
Anbieter der Immobilie
ohne-makler.net - Immobilien selbst vermarkten
Humboldtstr. 25 A, 21509 Glinde
Privat von Michael Hoffmann
Dein Ansprechpartner
Kontaktiere den Anbieter schriftlich, es ist keine Telefonnummer hinterlegt.
Online-ID: 2p7qq56
Referenznummer: 218516
Finde Angebote wie dieses
Hier geht es zu unserem Impressum, den Allgemeinen Geschäftsbedingungen, den Hinweisen zum Datenschutz und nutzungsbasierter Online-Werbung.