

TWE-Immobilien Thomas Erthle e. K.
Frau Angelika Mangler
+49 ···
Nr. anzeigenPreise & Kosten
Provision für Käufer
3,57 % inkl. MwSt.
Lage
Die Immobilie befindet sich in einer ruhigen und gewachsenen Wohnlage von Dinkelscherben mit überwiegend Ein- und Zweifamilienhäusern. Das gepflegte Umfeld sowie der geringe Durchgangsverkehr sorgen für eine angenehme und familienfreundliche Wohnatmosphäre.
Dinkelscherben im Landkreis Augsburg verbindet naturnahes...
Das Haus
Kategorie
Einfamilienhaus
Baujahr
1989
Energie & Heizung
Warum sehe ich diese Anzeige? – Du siehst diese Anzeige basierend auf Ihrer Navigation auf unserer Website und den Suchkriterien, die du verwendet hast.
Energieausweistyp
Verbrauchsausweis
Gebäudetyp
Wohngebäude
Baujahr laut Energieausweis
1989
Wesentliche Energieträger
Öl
Gültigkeit
09.03.2026 bis 08.03.2036
Effizienzklasse
F
Endenergieverbrauch
160,60 kWh/(m²·a)
Weitere Energiedaten
Energieträger
Öl
Heizungsart
Fußbodenheizung, Zentralheizung
Details
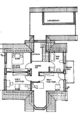
Objektbeschreibung
Dieses Einfamilienhaus aus dem Jahr 1989 präsentiert sich als gepflegte und vielseitig nutzbare Immobilie in angenehmer Wohnlage.
Auf rund 130 m² Wohnfläche, verteilt auf zwei Etagen, bietet das Erdgeschoss einen einladenden Wohn- und Essbereich mit Kamin, der besonders in den kälteren Monaten für eine angenehme...
Ausstattung
- Öl-Zentralheizung
- Fußbodenheizung im gesamten Wohnbereich sowie im Badezimmer
- Tageslichtbad mit Badewanne und Dusche
- Separates Gäste-WC
- Einbauküche
- Fliesen- und Laminatböden
- Balkon
- Zwei Terrassen
- Voll unterkellert und beheizt
- Separater Waschkeller
- Vielseitig...
Preisinformation
2 Stellplätze
1 Garagenstellplatz
Weitere Informationen
Sonstiges
Wir sind der allein beauftragte Makler und freuen uns auf Sie und Ihre Anfrage.
Wir vermitteln - mit Sicherheit.
Anbieter der Immobilie

Online-ID: 2p7qc57
Referenznummer: 3649 (1/3649)
Finde Angebote wie dieses
Hier geht es zu unserem Impressum, den Allgemeinen Geschäftsbedingungen, den Hinweisen zum Datenschutz und nutzungsbasierter Online-Werbung.