

Freitag Immobilienbewertung
Herr Birger Freitag
039 ···
Nr. anzeigenPreise & Kosten
Provision für Käufer
Käuferprovision: 3,5 % vom Kaufpreis
Lage
Wittenhof als Ortsteil der Gemeinde Schenkenberg befindet sich nur 3 km von der uckermärkischen Kreisstadt Prenzlau entfernt und verfügt über ca. 50 Einwohner.
Die leicht hügelige Landschaft ist geprägt von weiten Feldern und kleineren Badeseen.
Einkaufseinrichtungen und Behörden sowie KITAs und Schulen sind in Prenzlau...
Das Haus
Kategorie
Einfamilienhaus
Baujahr
1950
Bezug
sofort
Energie & Heizung
Warum sehe ich diese Anzeige? – Du siehst diese Anzeige basierend auf Ihrer Navigation auf unserer Website und den Suchkriterien, die du verwendet hast.
Energieausweistyp
Verbrauchsausweis
Gebäudetyp
Wohngebäude
Baujahr laut Energieausweis
1950
Wesentliche Energieträger
Öl
Gültigkeit
26.03.2026 bis 26.03.2036
Effizienzklasse
F
Endenergieverbrauch
169,20 kWh/(m²·a)
Weitere Energiedaten
Energieträger
Öl
Heizungsart
Zentralheizung
Details
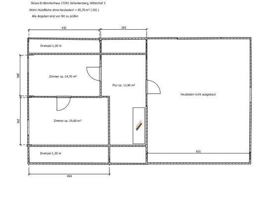
Objektbeschreibung
Das Grundstück mit seiner Größe von ca. 1.700 m² befindet sich in zentraler, ruhiger Ortslage und ist bebaut mit einem Einfamilienhaus aus dem Jahre um 1950 sowie kleineren Nebengebäuden, wie Garage und Stallungen ) .
Das zur Zeit nicht bewohnte Haus verfügt im Erdgeschoss über 2 helle Zimmer, Veranda, Flur, Küche mit...
Ausstattung
Putzfassade,
Satteldach mit Betonsteineindeckung
zusätzlicher Kamin möglich
isolierverglaste Kunststofffenster ( 1992)
modernes Bad ( ca. 2010)
Ölzentralheizung ( 1996)
mit Ausbaureserve
Mit Garage, Stallungen
mit Obstgarten......
Weitere Informationen
Sonstiges
Besichtigungstermine können unter unserer Rufnummer 03984 83 060 38 kurzfristig vereinbart werden.
Stichworte
Sonstiges/Wohnen: Dachboden
Anbieter der Immobilie
Freitag Immobilienbewertung
Steinstraße 24, 17291 Prenzlau

Online-ID: 2p7j756
Finde Angebote wie dieses
Hier geht es zu unserem Impressum, den Allgemeinen Geschäftsbedingungen, den Hinweisen zum Datenschutz und nutzungsbasierter Online-Werbung.