
Immobilien-Partner Figge GmbH & Co. KG
004 ···
Nr. anzeigenPreise & Kosten
Provision für Käufer
3,57 % inkl. 19 % MwSt.
Der Makler ist gem. §656c BGB als Doppelmakler tätig und erhält von dem Käufer und dem Verkäufer jeweils ein Erfolgshonorar in Höhe von 3,57 % vom Gesamtverkaufspreis inkl. der gültigen Mehrwertsteuer.
Lage
Eine idyllische Stadt, alte Kirchen und Mühlen, weite Landschaft, gesunde Luft und natürlich auch die Nordsee mit Ebbe und Flut prägen das Gesicht der Stadt Esens.
Die Stadt Esens ist Dienstleistungs- und Einkaufszentrale. Der Ort lädt zum Bummel durch die Altstadt mit Fußgängerzone und über den Marktplatz ein. Der...
Die Wohnung
Bezug
nach Vereinbarung
Wohnanlage
Details
Objektbeschreibung
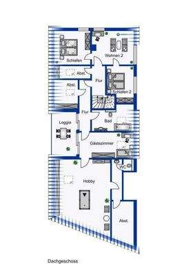
Direkt in der Esenser Innenstadt, angrenzend an den Kirchplatz, dennoch in einer ruhigen Straße gelegen, bieten wir Ihnen diese großzügige Etagenwohnung (Wohnung Nr. 2 lt. Aufteilungsplan, MEA 13,63/100stel) mit insgesamt 200 qm Wohnfläche zum Kauf an.
Die Einheit in einem Wohn- und Geschäftshaus (3× ruhiges Gewerbe, 4×...
Weitere Informationen
Stichworte
Nutzfläche: 64,00 m²
Anbieter der Immobilie
Online-ID: 2p7b456
Referenznummer: 6454
Finde Angebote wie dieses
Hier geht es zu unserem Impressum, den Allgemeinen Geschäftsbedingungen, den Hinweisen zum Datenschutz und nutzungsbasierter Online-Werbung.