

Kompass Immobilien Ratisbona
Frau Carola von Nordheim-Gehr
+49 ···
Nr. anzeigenPreise & Kosten
Kaution
2 MM
Warum sehe ich diese Anzeige? – Du siehst diese Anzeige basierend auf Ihrer Navigation auf unserer Website und den Suchkriterien, die du verwendet hast.
Lage
Regensburg als Weltkulturerbe zählt zu den beliebtesten Städten Deutschlands. Namhafte Firmen haben sich hier niedergelassen und sorgen somit für zahlreiche Arbeitsplätze.
Das Objekt entsteht im Stadtteil Konradsiedlung-Wutzlhofen, welcher ca. 1 km nördlich des Stadtbezirkes Reinhausen, damit 2 km nördlich der Donau...
Die Wohnung
Kategorie
Apartment
Wohnungslage
1. Geschoss
Bezug
sofort
Wohnanlage
Energie & Heizung
Warum sehe ich diese Anzeige? – Du siehst diese Anzeige basierend auf Ihrer Navigation auf unserer Website und den Suchkriterien, die du verwendet hast.
Weitere Energiedaten
Energieträger
Elektro
Details
Objektbeschreibung
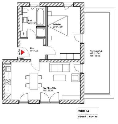
Die Wohnung im 1. OG weist insgesamt eine Wohnfläche von 68,41 m² inkl. Dachterrasse (10,68 m² = Anteil 50 %), verteilt auf 2 Zimmer, Bad und Flur und wurde mit einem hochwertigen Echtholz-Parkett sowie einer Fußbodenheizung ausgestattet. Die Besonderheit hierin liegt, dass diese auch zur Kühlung hergenommen werden kann...
Ausstattung
- KfW 55 EE Energiestandard
- Fußbodenheizung (mit Fußbodenkühlung für den Sommer)
- große Dachterrasse
- Balkonkraftwerke auf dem Balkonen möglich und vorgerüstet
- Bodengleiche Duschen mit Glastrennwand
- Badezimmer mit Tageslichtfenster
- Stylische schwarze Armaturen im Bad
- Schwarze Deckenspots im...
Preisinformation
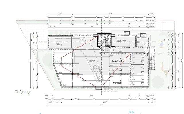
1 Garagenstellplatz, Miete: 100,00 EUR
Weitere Informationen
Stichworte
Tiefgarage vorhanden, Anzahl der Schlafzimmer: 1, Anzahl der Badezimmer: 1, 2 Etagen
Anbieter der Immobilie

Online-ID: 2p7a552
Referenznummer: 6030#p7AsFh
Finde Angebote wie dieses
Weitere Immobilien
Hier geht es zu unserem Impressum, den Allgemeinen Geschäftsbedingungen, den Hinweisen zum Datenschutz und nutzungsbasierter Online-Werbung.