

Immobilien Rother GmbH
Frau Anke Kiermaier-Rother
091 ···
Nr. anzeigenPreise & Kosten
Provision für Käufer
3,57 % des notariellen Kaufpreises
Lage
Die Immobilie befindet sich in zentraler Lage der Stadt Heideck im Landkreis Roth. Die Anbindung ist hervorragend: Über die nahegelegene B2 erreichen Sie sowohl die Kreisstadt Roth als auch Schwabach in kurzer Fahrzeit. Nürnberg und Ingolstadt sind ebenfalls gut angebunden, sodass auch Pendler ideale Voraussetzungen vorfinden...
Das Haus
Kategorie
Mehrfamilienhaus
Baujahr
1700
Bezug
sofort
Derzeitige Nutzung
vermietet
Energie & Heizung
Warum sehe ich diese Anzeige? – Du siehst diese Anzeige basierend auf Ihrer Navigation auf unserer Website und den Suchkriterien, die du verwendet hast.
Energieausweis: für diesen Gebäudetyp nicht notwendig
Weitere Energiedaten
Energieträger
Öl
Heizungsart
Fußbodenheizung, Zentralheizung
Details
Objektbeschreibung
Diese außergewöhnliche Immobilie vereint historischen Charakter mit attraktiven Nutzungsmöglichkeiten und stellt eine seltene Gelegenheit am Markt dar. Das denkmalgeschützte Mehrparteienhaus umfasst drei Wohneinheiten sowie ein zweigeschossiges Dachgeschoss mit erheblichem Ausbaupotenzial.
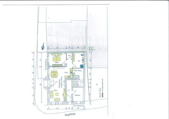
Erdgeschoss - sofort verfügbar...
Ausstattung
+ Denkmalgeschütztes Mehrparteienhaus
+ Insgesamt 3 Wohneinheiten
+ Wohneinheit im Erdgeschoss ca. 70 m², aktuell leerstehend
+ Fußbodenheizung in der Erdgeschosswohnung
+ Erdgeschoss mit
- zwei großzügigen Zimmern
- separater Wohnküche
- Badezimmer mit Badewanne + Infrarotkabine
+...
Weitere Informationen
Sonstiges
Melden Sie sich bei uns, wenn Sie diese schöne Immobilie besichtigen möchten - wir nehmen uns sehr gerne Zeit für Sie!
Bitte haben Sie Verständnis, dass wir nur Anfragen mit vollständigen Kontaktdaten bearbeiten.
Du?rfen wir Ihnen weiterhin behilflich sein?
- Wir ku?mmern uns um Ihre...
Anbieter der Immobilie

Online-ID: 2p77653
Referenznummer: 5678
Finde Angebote wie dieses
Hier geht es zu unserem Impressum, den Allgemeinen Geschäftsbedingungen, den Hinweisen zum Datenschutz und nutzungsbasierter Online-Werbung.