

Bien-Zenker GmbH
Herr Altan Bohnert
Kontaktiere den Anbieter schriftlich, es ist keine Telefonnummer hinterlegt.
Preise & Kosten
Provision für Käufer
Bitte beachte, das Angebot kann bei Vertragsabschluss die Zahlung einer Provision beinhalten. Weitere Informationen erhältst Du vom Anbieter.
Lage
Rheinfelden (Baden) liegt idyllisch am Hochrhein, direkt an der Grenze zur Schweiz. Die Stadt bietet eine hervorragende Anbindung: Über die A98 und den Bahnhof sind Basel, Lörrach und Freiburg schnell erreichbar. Der EuroAirport Basel-Mulhouse-Freiburg ist in ca. 15 Minuten zu erreichen.
Einkaufsmöglichkeiten, Schulen...
Das Haus
Kategorie
Doppelhaushälfte
Baujahr
2026
Energie & Heizung
Warum sehe ich diese Anzeige? – Du siehst diese Anzeige basierend auf Ihrer Navigation auf unserer Website und den Suchkriterien, die du verwendet hast.
Weitere Energiedaten
Heizungsart
Fußbodenheizung
Details
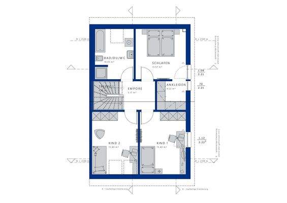
Objektbeschreibung
Das exklusive Erbpachtgrundstück in Rheinfelden kann in Verbindung mit einem Bien-Zenker-Haus bebaut werden. Aktuell stehen zwei Grundstücksgrößen zur Verfügung: 230 m² und 430 m². Auf Wunsch können beide Grundstücke auch gekauft werden - der Kaufpreis beträgt 550 EUR/m².
Diese Projektierung zeigt Ihnen eine mögliche...
Ausstattung
Ihr Traumhaus in hochwertiger Bien-Zenker-Qualität - inklusive:
? Modernes Energiesparhaus für nachhaltiges Wohnen
? Bodenplatte - solide Basis für Ihr Zuhause
? Fenster mit 3-fach-Isolierverglasung (Anzahl und Maße gemäß Grundriss)
? Effiziente Luft-Luft-Wärmepumpe mit integrierter Kühlfunktion
...
Weitere Informationen
Stichworte
Anzahl der Schlafzimmer: 3, Anzahl der Badezimmer: 2, 2 Etagen
Sonstiges/Wohnen: Dachboden
Anbieter der Immobilie
Bien-Zenker GmbH
Parzelle 6, 77966 Kappel-Grafenhausen

Herr Altan Bohnert
Dein Ansprechpartner
Kontaktiere den Anbieter schriftlich, es ist keine Telefonnummer hinterlegt.
Online-ID: 2p75e57
Referenznummer: 12655-2070
Finde Angebote wie dieses
Hier geht es zu unserem Impressum, den Allgemeinen Geschäftsbedingungen, den Hinweisen zum Datenschutz und nutzungsbasierter Online-Werbung.