
Herr Graf
Herr Herr Graf
Kontaktiere den Anbieter schriftlich, es ist keine Telefonnummer hinterlegt.
Preise & Kosten
Provision für Käufer
provisionsfrei
Lage
Die Drahtzieherstraße 7, 90453 Nürnberg (Gemarkung Reichelsdorf Flurnummer 426/13, Gartenabteile mit Rednitz-Zugang Flurnummer 426/23) bietet eine unvergleichliche Wohnlage: direkt am idyllischen Rednitzgrund gelegen, wohnen Sie hier mitten im Grünen, umgeben von wunderschönen Natur- und Erholungsflächen. Geschäfte des...
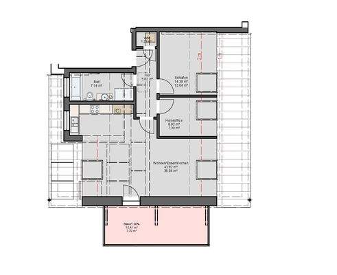
Die Wohnung
Kategorie
Penthouse
Wohnungslage
3. Geschoss (Dachgeschoss)
Bezug
sofort
Derzeitige Nutzung
frei
Wohnanlage
Energie & Heizung
Warum sehe ich diese Anzeige? – Du siehst diese Anzeige basierend auf Ihrer Navigation auf unserer Website und den Suchkriterien, die du verwendet hast.
Energieausweistyp
Bedarfsausweis
Gebäudetyp
Wohngebäude
Baujahr laut Energieausweis
2024
Wesentliche Energieträger
Strom
Gültigkeit
22.07.2025 bis 22.07.2035
Effizienzklasse
A+
Endenergiebedarf
13,60 kWh/(m²·a)
Weitere Energiedaten
Energieträger
Elektro
Haustyp
KfW 55
Heizungsart
Fußbodenheizung, Luft-/Wasser-Wärmepumpe, Zentralheizung
Details
Objektbeschreibung
In der Drahtzieherstraße 7 in Nürnberg-Reichelsdorf sind in einzigartiger Lage direkt am Landschaftsschutzgebiet durch energetische Sanierung auf KfW-55-Neubaustandard (Totalsanierung) insgesamt 8 moderne, hochwertige Eigentumswohnungen entstanden. Große Balkone und bei den beiden Gartenwohnungen große Terrassen eröffnen den...
Ausstattung
Das vorhandene Gebäude, ein Massivbau mit 30 cm Mauerwerk und Stahlbetondecken, wurde vollständig einschließlich des alten Estrichs entkernt und alle Leitungen (Stromleitungen, Telefonleitungen, TV-Leitungen, Wasserleitungen, Abwasserrohre, Heizungsrohre, Fallrohre, Kanalgrundleitungen auch unter dem Gebäude...
Weitere Informationen
Sonstiges
Die Wohnungen werden ohne Makler direkt vom Bauträger provisionsfrei verkauft. Makler daher bitte von Anfragen sowie verdeckten Anfragen absehen. Vielen Dank!
Stichworte
Sonstiges/Wohnen: Dachboden
Versorgung: Städtische Wasserversorgung, Städtische Stromversorgung
Dokumente
Anbieter der Immobilie
Herr Graf
O'Brien Straße 2, 91126 Schwabach
Herr Herr Graf
Dein Ansprechpartner
Kontaktiere den Anbieter schriftlich, es ist keine Telefonnummer hinterlegt.
Online-ID: 2p72z57
Finde Angebote wie dieses
Hier geht es zu unserem Impressum, den Allgemeinen Geschäftsbedingungen, den Hinweisen zum Datenschutz und nutzungsbasierter Online-Werbung.