
Immobiliaris GmbH
Frau Lea Leichtfried
+43 ···
Nr. anzeigenPreise & Kosten
Kaution
6 Bruttomonatsmieten
Provision für Mieter
Bitte beachte, das Angebot kann bei Vertragsabschluss die Zahlung einer Provision beinhalten. Weitere Informationen erhältst Du vom Anbieter.
Warum sehe ich diese Anzeige? – Du siehst diese Anzeige basierend auf Ihrer Navigation auf unserer Website und den Suchkriterien, die du verwendet hast.
Lage
Lage:
Zentrale Adresse in der Wollzeile, im Herzen der Wiener Innenstadt
Nur wenige Gehminuten zum Stadtpark - ideale Möglichkeit für kurze Pausen im Grünen
Perfekte Anbindung über Wien Mitte (U3, U4, S-Bahn, CAT)
Nähe Rotenturmstraße und Stephansplatz mit vielfältiger Infrastruktur und Gastronomie in...
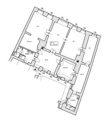
Büro-/Praxisfläche
Geschoss
1. Geschoss
Energie & Heizung
Warum sehe ich diese Anzeige? – Du siehst diese Anzeige basierend auf Ihrer Navigation auf unserer Website und den Suchkriterien, die du verwendet hast.
Heizwärmebedarf (HWB)
147,80 kWh/(m²·a)
Gesamtenergieeffizienz (fGEE)
3,68
Weitere Energiedaten
Energieträger
Gas
Heizungsart
Etagenheizung
Details
Objektbeschreibung
Sehr geehrte Damen und Herren,
in ausgezeichneter Lage der Wollzeile gelangt dieses gepflegte Büro zur Vermietung, das durch eine durchdachte Raumaufteilung sowie den klassischen Altbaucharakter überzeugt.
Die Fläche gliedert sich in einen einladenden Empfangsbereich, vier gut nutzbare Büroräume, zwei separate...
Preisinformation
Nettokaltmiete: 3.680,47 EUR
Weitere Informationen
Stichworte
Nutzfläche: 204,47 m², Bundesland: Wien
Anbieter der Immobilie
Immobiliaris GmbH
Rotenturmstrasse 17, Top 10-12, 1010 WIEN
Online-ID: 2p6zh55
Referenznummer: OBGC2026033015483142160d7b65a84
Finde Angebote wie dieses
Hier geht es zu unserem Impressum, den Allgemeinen Geschäftsbedingungen, den Hinweisen zum Datenschutz und nutzungsbasierter Online-Werbung.