

myImmoTrust GmbH
Herr Edim Odzoski
017 ···
Nr. anzeigenPreise & Kosten
Provision für Käufer
3,57% inkl. MwSt. inkl. MwSt.
Lage
Das charmante Einfamilienhaus liegt in der ruhigen und idyllischen Umgebung von Garbsen, im Stadtteil Osterwald Oberende. Diese familienfreundliche Gegend bietet die perfekte Balance zwischen ländlichem Flair und der Nähe zur städtischen Infrastruktur. Einkaufsmöglichkeiten sind nur wenige Fahrminuten entfernt und auch die...
Das Haus
Kategorie
Einfamilienhaus
Baujahr
1972
Energie & Heizung
Warum sehe ich diese Anzeige? – Du siehst diese Anzeige basierend auf Ihrer Navigation auf unserer Website und den Suchkriterien, die du verwendet hast.
Energieausweistyp
Verbrauchsausweis
Gebäudetyp
Wohngebäude
Baujahr laut Energieausweis
2017
Wesentliche Energieträger
ELEKTRO
Gültigkeit
bis 06.05.2028
Effizienzklasse
D
Endenergieverbrauch
103,00 kWh/(m²·a)
Weitere Energiedaten
Haustyp
Fertighaus
Energieträger
Elektro
Details
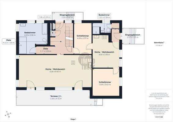
Objektbeschreibung
Willkommen zu Ihrem neuen Zuhause in Garbsen, im idyllischen Ortsteil Osterwald Oberende. Dieses charmante Einfamilienhaus (Fertighaus) mit Einliegerwohnung bietet Ihnen eine einmalige Gelegenheit, Wohnen und Vermieten unter einem Dach zu vereinen. Auf einem großzügigen Grundstück von ca. 994 m² befindet sich diese gepflegte...
Ausstattung
*** Einbauküche & Inventar zzgl. 15.000€ ***
- Großer Garten
- Voll unterkellert
- Großzügige Terrasse
- Drei moderne Badezimmer
- Sechs geräumige Schlafzimmer
- Einfamilienhaus mit Einliegerwohnung
- Großes Grundstück mit knapp 1000 m²
- Hochwertige Nolte-Küche mit E-Geräten...
Preisinformation
2 Stellplätze
1 Garagenstellplatz
Weitere Informationen
Sonstiges
Der Eigentümer wurde aufgefordert den Energieausweis zu beschaffen.
Der Energieausweis befindet sich in Erstellung und wird bis zum Besichtigungstermin vorgelegt.
***
Sie haben selber eine Immobilie zu verkaufen oder kennen jemanden, der seine Immobilie verkaufen möchte? Dann sind wir der ideale...
Anbieter der Immobilie

Online-ID: 2p6x656
Referenznummer: EO1277
Finde Angebote wie dieses
Hier geht es zu unserem Impressum, den Allgemeinen Geschäftsbedingungen, den Hinweisen zum Datenschutz und nutzungsbasierter Online-Werbung.