
Neuner Immobilien
Herr Andreas Neuner
+49 ···
Nr. anzeigenPreise & Kosten
Kaution
3 Kaltmieten
Provision für Mieter
3 Kaltmieten + MwSt., zahlbar vom Mieter
Warum sehe ich diese Anzeige? – Du siehst diese Anzeige basierend auf Ihrer Navigation auf unserer Website und den Suchkriterien, die du verwendet hast.
Lage
- gut sichtbare Lage
- schöner Ausblick
- Bahnhof ca. 2 km
Büro-/Praxisfläche
Baujahr
2026
Geschoss
1. Geschoss
Energie & Heizung
Warum sehe ich diese Anzeige? – Du siehst diese Anzeige basierend auf Ihrer Navigation auf unserer Website und den Suchkriterien, die du verwendet hast.
Weitere Energiedaten
Heizungsart
Zentralheizung
Details
Objektbeschreibung
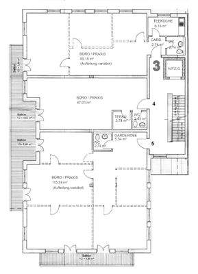
Die angebotenen Büro-/Praxisräume befinden sich in gut frequentierter Lage von Wackersberg und werden derzeit gerade fertiggestellt. Der Bezug ist voraussichtlich ab ca. 01.07.2026 möglich.
Es gibt 3 verschiedene Einheiten mit ca. 55 m², 81 m² bzw. 125 m² (insgesamt ca. 261 m²) Nutzfläche.
Zusätzlich stehen...
Ausstattung
- Aufzug
- WC und Teeküche
- Fliesen oder Vinylböden
- Fußbodenheizung
Preisinformation
1 Stellplatz, Miete: 20,00 EUR
Nettokaltmiete: 795,00 EUR
Weitere Informationen
Sonstiges
Energieausweis: Bedarfsausweis (wird gemäß § 87 GEG derzeit erstellt)
Anbieter der Immobilie
Neuner Immobilien
Brauneckstr. 34, 83646 Bad Tölz
Online-ID: 2p6vn57
Referenznummer: MG-260402-O3
Finde Angebote wie dieses
Hier geht es zu unserem Impressum, den Allgemeinen Geschäftsbedingungen, den Hinweisen zum Datenschutz und nutzungsbasierter Online-Werbung.