
Deutsche Bank Immobilien GmbH
Herr Sokol Iberdemaj
053 ···
Nr. anzeigenPreise & Kosten
Provision für Käufer
2,5 % inkl. MwSt.
Lage
Die Lage im Quartier "Altes Dorf" vereint historisch gewachsenes Umfeld und zeitgemäße Alltagstauglichkeit. Als Teil von Salzgitter-Lebenstedt profitiert der Standort von einer guten Infrastruktur, kurzen Wegen im täglichen Leben und einer soliden Anbindung an den öffentlichen Nahverkehr. So entsteht ein Wohnumfeld, das Ruhe...
Die Wohnung
Wohnungslage
Erdgeschoss
Wohnanlage
Energie & Heizung
Warum sehe ich diese Anzeige? – Du siehst diese Anzeige basierend auf Ihrer Navigation auf unserer Website und den Suchkriterien, die du verwendet hast.
Energieausweistyp
Bedarfsausweis
Gebäudetyp
Wohngebäude
Baujahr laut Energieausweis
2024
Wesentliche Energieträger
Fernwärme
Gültigkeit
17.12.2024 bis 17.12.2034
Effizienzklasse
A+
Endenergiebedarf
26,40 kWh/(m²·a)
Weitere Energiedaten
Energieträger
Fernwärme
Haustyp
KfW 40
Heizungsart
Fußbodenheizung, Zentralheizung
Details
Objektbeschreibung
Kurzbeschreibung
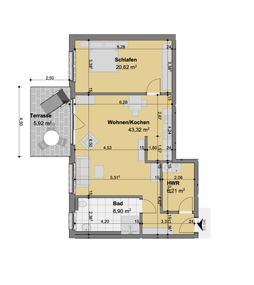
Diese Erdgeschosswohnung bietet ca. 84,97 m² Wohnfläche, Terrasse und einen offen gestalteten Wohn-, Ess- und Kochbereich mit ca. 43,32 m² - ideal für alle, die Großzügigkeit und Komfort schätzen.
Objekt
In einem architektonisch ansprechend geplanten Mehrfamilienhaus der Wohnanlage "Wohnen im...
Ausstattung
Individuelle Ausstattungsmerkmale:
- Alarmanlage
- Glasfaseranschluss
- elektrische Rolläden
- pflegeleicht angelegter Garten
- Aufzug
- barrierefreies Wohnen
Die Wohnung überzeugt mit einem offen gestalteten Wohn-, Ess- und Kochbereich, Terrasse, großzügigem Schlafzimmer, komfortablem Bad und...
Weitere Informationen
Sonstiges
Rechtlicher Hinweis auf den Urheber des Exposés
Sokol Iberdemaj
Selbstständiger Immobilienberater
Swindonstr. 157 30226 Salzgitter ST Lebenstedt
E-Mail: sokol.iberdemaj@db.com
Telefon: 0531 86660760
Aufsichtsbehörde: IHK Braunschweig
Internet: www.ihk.de/Braunschweig
Anschrift...
Anbieter der Immobilie
Deutsche Bank Immobilien GmbH
Ackerhof 2, 38100 Braunschweig
Online-ID: 2p6v853
Referenznummer: 41010101-1018366
Finde Angebote wie dieses
Hier geht es zu unserem Impressum, den Allgemeinen Geschäftsbedingungen, den Hinweisen zum Datenschutz und nutzungsbasierter Online-Werbung.