
Crozilla.com
Domus Trogir
+38 ···
Nr. anzeigenPreise & Kosten
Provision für Käufer
Bitte beachte, das Angebot kann bei Vertragsabschluss die Zahlung einer Provision beinhalten. Weitere Informationen erhältst Du vom Anbieter.
Die Wohnung
Wohnungslage
1. Geschoss
Details
Objektbeschreibung
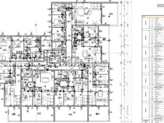
Wir bieten eine im Bau befindliche Zwei-Zimmer-Wohnung in Okrug Gornji zum Verkauf an. Die Wohnungsnummer lautet STAN 18.
Die Wohnung besteht aus einem Flur, zwei Schlafzimmern, einem Wohnzimmer mit Küche und Esszimmer, einem Badezimmer, einem Gäste-WC und einer Loggia. Die genaue Wohnfläche finden Sie im Grundriss.
Das...
Weitere Informationen
Stichworte
Anzahl der Schlafzimmer: 2, Anzahl der Badezimmer: 1, 1 Etagen
Anbieter der Immobilie
Crozilla.com
Nova cesta 60, 10000 ZAGREB
Online-ID: 2p6u858
Referenznummer: 18602537_5
Finde Angebote wie dieses
Hier geht es zu unserem Impressum, den Allgemeinen Geschäftsbedingungen, den Hinweisen zum Datenschutz und nutzungsbasierter Online-Werbung.