

EHL Gewerbeimmobilien GmbH
Frau Hannah Martl
+43 ···
Nr. anzeigenPreise & Kosten
Provision für Käufer
3 % zzgl. 20% USt.
Lage
Die Verkehrsanbindung ist ausgezeichnet:
- U-Bahn (U1) in fußläufiger Distanz
- Nähe zum Wiener Hauptbahnhof
- Straßenbahn- und Buslinien entlang des Gürtels
- Sehr gute Anbindung an das übergeordnete Straßennetz
Zusätzlich profitieren Sie von:
- Bedeutenden Bürostandorten (insb. Erste Campus)
-...
Die Ladenfläche
Kategorie
Laden
Baujahr
1952
Bezug
nach Vereinbarung
Energie & Heizung
Warum sehe ich diese Anzeige? – Du siehst diese Anzeige basierend auf Ihrer Navigation auf unserer Website und den Suchkriterien, die du verwendet hast.
Heizwärmebedarf (HWB)
223,90 kWh/(m²·a)
Gesamtenergieeffizienz (fGEE)
1,60
Details
Objektbeschreibung
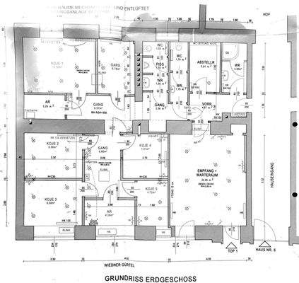
In prominenter Lage des 4. Wiener Gemeindebezirks gelangt dieses repräsentative Geschäftslokal mit ca. 132 m² Nutzfläche zum Verkauf. Direkt am Wiedner Gürtel gelegen, vereint die Liegenschaft hohe Frequenz, ausgezeichnete Sichtbarkeit und nachhaltiges Wertsteigerungspotenzial.
Das Objekt befindet sich im Erdgeschoss...
Weitere Informationen
Sonstiges
Hinweis gemäß Energieausweisvorlagegesetz: Ein Energieausweis wurde vom Eigentümer bzw. Verkäufer, nach unserer Aufklärung über die ab 1.12.2012 geltende generelle Vorlagepflicht, sowie Aufforderung zu seiner Erstellung noch nicht vorgelegt. Daher gilt zumindest eine dem Alter und der Art des Gebäudes...
Anbieter der Immobilie
EHL Gewerbeimmobilien GmbH
Prinz-Eugen-Strasse 8-10, 1040 WIEN

Online-ID: 2p6q653
Referenznummer: R2601462
Finde Angebote wie dieses
Hier geht es zu unserem Impressum, den Allgemeinen Geschäftsbedingungen, den Hinweisen zum Datenschutz und nutzungsbasierter Online-Werbung.