
VID Immobilien GmbH
Herr Maximilian Schwaiger
081 ···
Nr. anzeigenPreise & Kosten
Provision für Käufer
3% des Kaufpreises inkl. MwSt.
Lage
Die angebotene Doppelhaushälfte befindet sich in ruhiger und begehrter Wohnlage im Erdinger Stadtteil Langengeisling. Die Umgebung ist geprägt von gepflegten Ein- und Zweifamilienhäusern sowie wenig Durchgangsverkehr und bietet damit ein ideales Wohnumfeld für Familien, Paare und Ruhesuchende.
Langengeisling vereint...
Das Haus
Kategorie
Doppelhaushälfte
Baujahr
1985
Bezug
Nach Vereinbarung - Frühjahr 2026
Energie & Heizung
Warum sehe ich diese Anzeige? – Du siehst diese Anzeige basierend auf Ihrer Navigation auf unserer Website und den Suchkriterien, die du verwendet hast.
Weitere Energiedaten
Energieträger
Öl
Heizungsart
offener Kamin
Details
Objektbeschreibung
Diese charmante Doppelhaushälfte befindet sich in ruhiger und begehrter Wohnlage von Erding-Langengeisling. Eingebettet in ein gewachsenes, familienfreundliches Wohngebiet mit überwiegend Ein- und Zweifamilienhäusern, bietet die Immobilie ein angenehmes Wohnumfeld mit hohem Erholungswert und gleichzeitig sehr guter Anbindung...
Ausstattung
- Doppelhaushälfte in ruhiger Wohnlage von Erding-Langengeisling
- Grundstück ca. 726m²
- Wohnfläche ca. 180m²
- Einbauküchen im Erd- und Dachgeschoss vorhanden
- Kunststofffenster, teilweise erneuert, 2-fach verglast
- Neue und größere Fenster im Dachgeschoss (2015)
- Eichenparkett im Wohn- und Essbereich...
Weitere Informationen
Stichworte
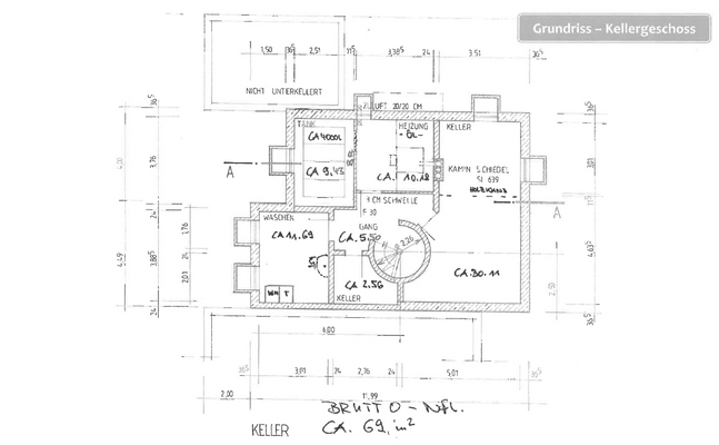
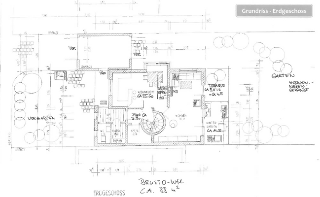
Garage vorhanden, Stellplatz vorhanden, Nutzfläche: 60,00 m², Anzahl der Schlafzimmer: 4, Anzahl der Badezimmer: 2, Anzahl Balkone: 1, Balkon-Terrassen-Fläche: 7,50 m², Bundesland: Bayern, modernisiert: 2022
Anbieter der Immobilie
Online-ID: 2p6nk52
Referenznummer: 4881136
Finde Angebote wie dieses
Hier geht es zu unserem Impressum, den Allgemeinen Geschäftsbedingungen, den Hinweisen zum Datenschutz und nutzungsbasierter Online-Werbung.