
Werner und Sabine Sauer KG Fachmakler für Gewerbeimmobilien
Frau Sabine Sauer
030 ···
Nr. anzeigenPreise & Kosten
Provision für Käufer
Der Käfer hat eine Maklerprovision von 5 % des Kaufpreises (zzgl. MwSt.) zu tragen.
Lage
Nördlich von Berlin im Gewerbegebiet von Hennigsdorf. Verkehrsgünstige Lage durch die Anbindung an die A111 und den Berliner Ring.
Die Industriefläche
Kategorie
Lagerhalle
Baujahr
2003
Energie & Heizung
Warum sehe ich diese Anzeige? – Du siehst diese Anzeige basierend auf Ihrer Navigation auf unserer Website und den Suchkriterien, die du verwendet hast.
Wärme
Strom
Energieausweistyp
Verbrauchsausweis
Gebäudetyp
Nicht-Wohngebäude
Gültigkeit
16.10.2023 bis 17.08.2035
Endenergieverbrauch (Wärme)
516,00 kWh/(m²·a)
Endenergieverbrauch (Strom)
5,40 kWh/(m²·a)
Weitere Energiedaten
Energieträger
Fernwärme
Details
Objektbeschreibung
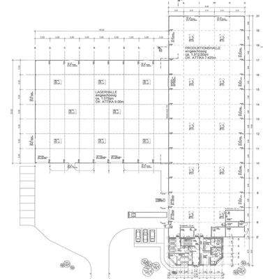
zum Verkauf steht ein ca. 8.489 m² großes Gewerbegrundstück, bebaut mit modernen Produktions-/Lagerhallen (Goldbeck):
Produktionshalle: ca. 1.913 m²
Lagerhalle: ca. 1.575...
Ausstattung
Die Hallen sind jeweils eine stützenfreie Stahlskelettkonstruktion (Rastermaß 5m) mit geglätteten Industrieböden, Dach Trapezwarmdach mit Folienabdichtung und 100 mm Dämmung; Trapezblechkassetten-wände mit 120 mm Dämmung. Beide Hallen sind als Warmhallen mit Heizung errichtet. Stahlbinder in der Produktionshalle und...
Weitere Informationen
Stichworte
Lagerfläche: 3.488,00 m², Nutzfläche: 3.834,00 m², Gesamtfläche: 3.834,00 m², Bürofläche: 346,00 m², Hallenhöhe: 7,00 m
Sonstiges: EDV-Verkabelung
Online-ID: 2p6ne57
Referenznummer: 3934#CqXe5N
Finde Angebote wie dieses
Hier geht es zu unserem Impressum, den Allgemeinen Geschäftsbedingungen, den Hinweisen zum Datenschutz und nutzungsbasierter Online-Werbung.