
Crozilla.com
Plus Nekretnine
+38 ···
Nr. anzeigenPreise & Kosten
Provision für Käufer
Bitte beachte, das Angebot kann bei Vertragsabschluss die Zahlung einer Provision beinhalten. Weitere Informationen erhältst Du vom Anbieter.
Die Immobilie
Zu diesem Angebot wurden vom Anbieter keine weiteren Daten hinterlegt. Für weitere Informationen bitte den Anbieter kontaktieren.
Nach Informationen fragenDetails
Objektbeschreibung
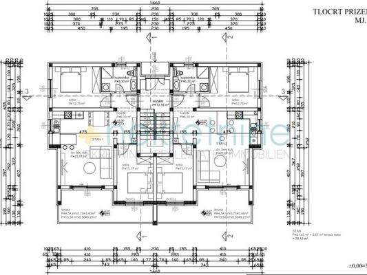
Na prodaju S2 Dvosoban stan s vrtom u novogradnji, Sveti Filip i Jakov 70,12 m
Prodaje se atraktivan dvosoban stan S2 u prizemlju novogradnje u Svetom Filipu i Jakovu, svega 300 m od mora, plaze i centra mjesta!
Povrsina stana: 70,12 m
Privatni vrt: 90 m
Dva parkirna mjesta
Mogucnost kupnje spremista u...
Weitere Informationen
Stichworte
Anzahl der Schlafzimmer: 2, Anzahl der Badezimmer: 1, 1 Etagen
Anbieter der Immobilie
Crozilla.com
Nova cesta 60, 10000 ZAGREB
Online-ID: 2p6ky57
Referenznummer: 18498054_6
Finde Angebote wie dieses
Hier geht es zu unserem Impressum, den Allgemeinen Geschäftsbedingungen, den Hinweisen zum Datenschutz und nutzungsbasierter Online-Werbung.