

Hermann Lott Auktionator und Grundstücksmakler KG
Herr Hermann Lott
044 ···
Nr. anzeigenPreise & Kosten
Provision für Käufer
Die Käuferprovision beträgt 3,57 % inkl. 19 % MwSt. vom beurkundeten Kaufpreis. inkl. MwSt.
Lage
Das großzügige und gepflegte Zweifamilienhaus mit Teilkeller und Garagenanbau mit großzügig überdachter Terrasse befindet sich in einer besten Wohnlagen Augustfehns - zentral im Herzen des Ortes!
Zu Fuß oder mit dem Rad, Sie können alles autofrei erledigen! Schulen, Ärzte, Sporthallen, Supermärkte und der Bahnhof...
Das Haus
Kategorie
Mehrfamilienhaus
Baujahr
1979
Bezug
nach Vereinbarung
Derzeitige Nutzung
vermietet
Energie & Heizung
Warum sehe ich diese Anzeige? – Du siehst diese Anzeige basierend auf Ihrer Navigation auf unserer Website und den Suchkriterien, die du verwendet hast.
Weitere Energiedaten
Haustyp
Massivhaus
Energieträger
Gas
Heizungsart
Fußbodenheizung, Zentralheizung
Details
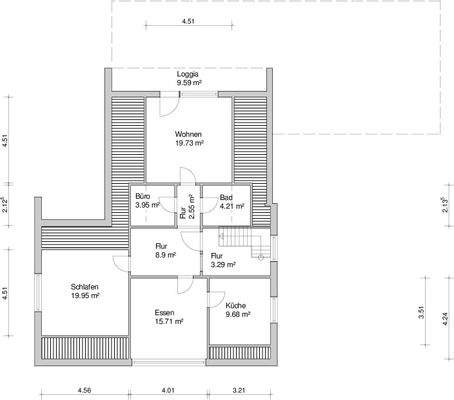
Objektbeschreibung
Großzügiges und gepflegtes Zweifamilienhaus mit Doppelgarage und Terrassenüberdachung sowie Teilkeller in sehr bevorzugter Wohnlage im Ortzentrum von Augustfehn.
Der Bahnhof und die Versorgungseinrichtungen sind bequem zu Fuß zu erreichen.
Räumlichkeiten:
a) Kellergeschoss
Ein Kellerraum.
b)...
Preisinformation
2 Garagenstellplätze
Weitere Informationen
Sonstiges
Zu diesem Objekt liegt ein ausführliches Exposé mit weiteren Detailinformationen vor, das Sie gerne bei uns anfordern können.
Telefonische Erreichbarkeit:
Montag - Freitag: 8.00 Uhr - 12.30 Uhr und 14.00 Uhr bis 17.30 Uhr
Samstag: 9.00 Uhr -12.00 Uhr
Sie möchten Ihre Immobilie...
Anbieter der Immobilie
Hermann Lott Auktionator und Grundstücksmakler KG
Mühlenstraße 15, 26689 Apen - Augustfehn

Online-ID: 2p6kd57
Referenznummer: 8681
Finde Angebote wie dieses
Hier geht es zu unserem Impressum, den Allgemeinen Geschäftsbedingungen, den Hinweisen zum Datenschutz und nutzungsbasierter Online-Werbung.