
ALON Immobilien GmbH
Herr Ronny Abramov
+43 ···
Nr. anzeigenPreise & Kosten
Provision für Käufer
3% des Kaufpreises zzgl. 20% USt.
Lage
Ruhige Wohnlage in Groß-Enzersdorf mit überwiegend Einfamilienhausbebauung.
Nähe zu Donau-Auen und Donau-Oder-Kanal mit hohem Freizeitwert.
Gute Anbindung an Wien über B3 und A23. Nahversorgung, Schulen und Ärzte im Ortszentrum.
Öffentliche Anbindung Richtung Wien Donaustadt vorhanden.
Das Haus
Kategorie
Einfamilienhaus
Baujahr
2017
Energie & Heizung
Warum sehe ich diese Anzeige? – Du siehst diese Anzeige basierend auf Ihrer Navigation auf unserer Website und den Suchkriterien, die du verwendet hast.
Weitere Energiedaten
Heizungsart
Fußbodenheizung, Luft-/Wasser-Wärmepumpe
Details
Objektbeschreibung
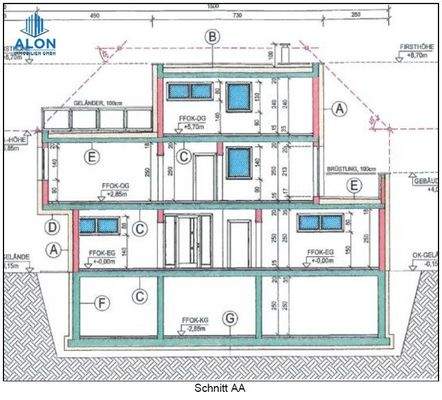
Zum Verkauf gelangt ein hochwertiges Einfamilienhaus in massiver Ziegel-Stahlbetonbauweise aus dem Jahr 2014 auf einer Grundstückfläche von ca. 421 m².
Das Haus erstreckt sich über Kellergeschoss, Erdgeschoss, Obergeschoss sowie ein ausgebautes Dachgeschoss und überzeugt durch eine klare Architektur, großzügige Flächen...
Preisinformation
1 Stellplatz
Weitere Informationen
Stichworte
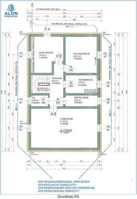
Stellplatz vorhanden, Nutzfläche: 406,00 m², Anzahl der Badezimmer: 3, Anzahl der separaten WCs: 4, Anzahl Terrassen: 4, Balkon-Terrassen-Fläche: 88,00 m², Bundesland: Niederösterreich
Wellness: Wellnessbereich
Anbieter der Immobilie
ALON Immobilien GmbH
Tuchlauben 8, 1010 WIEN
Online-ID: 2p6fh54
Referenznummer: OBGC20260209103620438cb3ac21602
Finde Angebote wie dieses
Günstige Immobilienfinanzierung einfach online berechnen
Persönliches Angebot berechnenWarum sehe ich diese Werbung? – Du siehst diese Werbung basierend auf Deiner Navigation auf unserer Website und der von Dir verwendeten Suchkriterien.
Diese Werbung wird bezahlt von durchblicker
Werbung melden
Hier geht es zu unserem Impressum, den Allgemeinen Geschäftsbedingungen, den Hinweisen zum Datenschutz und nutzungsbasierter Online-Werbung.