
L. Kattau Immobilien e.K.
Herr Lars Kattau
042 ···
Nr. anzeigenPreise & Kosten
Provision für Käufer
3,5 % Maklercourtage zzgl. Mehrwertsteuer
Das Haus
Kategorie
Doppelhaushälfte
Baujahr
1925
Bezug
nach Absprache
Energie & Heizung
Warum sehe ich diese Anzeige? – Du siehst diese Anzeige basierend auf Ihrer Navigation auf unserer Website und den Suchkriterien, die du verwendet hast.
Energieausweistyp
Bedarfsausweis
Gebäudetyp
Wohngebäude
Wesentliche Energieträger
Gas
Gültigkeit
27.03.2026 bis 27.03.2036
Effizienzklasse
G
Endenergiebedarf
211,97 kWh/(m²·a)
Weitere Energiedaten
Haustyp
Massivhaus
Energieträger
Gas
Details
Objektbeschreibung
Zum Verkauf steht eine renovierungsbedürftige 4 Zimmer - Doppelhaushälfte in einer ruhigen Lage in der begehrten Kleinstadt Osterholz-Scharmbeck, einer Stadt mit hervorragender Infrastruktur mit einer guten Anbindung an Bremen. Einkaufsmöglichkeiten, Schulen, Kindergarten und Ärzte sind in wenigen Minuten erreichbar. Die...
Weitere Informationen
Stichworte
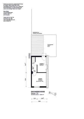
Nutzfläche: 34,00 m², Anzahl der Schlafzimmer: 2, Anzahl der Badezimmer: 1, Anzahl Terrassen: 1, Kellerfläche: 20,00 m², Dachbodenfläche: 14,00 m²
Anbieter der Immobilie

L. Kattau Immobilien e.K.
Bremerhavener Heerstr. 26, 28717 Bremen
Online-ID: 2p66u56
Referenznummer: 136637118#5cNUjY
Finde Angebote wie dieses
Hier geht es zu unserem Impressum, den Allgemeinen Geschäftsbedingungen, den Hinweisen zum Datenschutz und nutzungsbasierter Online-Werbung.