
Aller Weser Immobilien GmbH & Co.KG
Herr Wilken Dankleff
004 ···
Nr. anzeigenPreise & Kosten
Provision für Käufer
provisionsfrei
Lage
Die Immobilie befindet sich in einem ruhigen und familienfreundlichen Wohngebiet in Langwedel im Landkreis Verden. Die Umgebung ist geprägt von gepflegten Einfamilienhäusern, wenig Verkehr und einer angenehm entspannten Nachbarschaft. Der Ort bietet eine ausgewogene Mischung aus ländlicher Atmosphäre und guter Erreichbarkeit...
Das Haus
Kategorie
Mehrfamilienhaus
Baujahr
2015
Energie & Heizung
Warum sehe ich diese Anzeige? – Du siehst diese Anzeige basierend auf Ihrer Navigation auf unserer Website und den Suchkriterien, die du verwendet hast.
Energieausweistyp
Bedarfsausweis
Gebäudetyp
Wohngebäude
Wesentliche Energieträger
GAS
Gültigkeit
bis 26.11.2035
Effizienzklasse
B
Weitere Energiedaten
Haustyp
Massivhaus
Energieträger
Gas
Heizungsart
Zentralheizung
Details
Objektbeschreibung
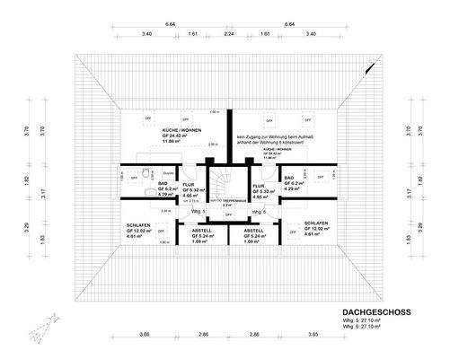
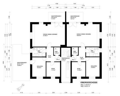
Das im Jahr 2015 errichtete Mehrfamilienhaus umfasst sechs vollständig vermietete Wohneinheiten mit Wohnflächen zwischen etwa 27 und 105 Quadratmetern und stellt eine nachhaltig gefragte Wohnimmobilie mit sehr guter Vermietbarkeit dar. Die klare Architektur, großzügigen Fensterflächen und offenen Wohn-, Ess- und Kochbereiche...
Ausstattung
+ Mehrfamilienhaus mit insgesamt 6 Wohneinheiten
+ Teilung nach Wohnungseigentumsgesetz (WEG)
+ Wohnflächen zwischen ca. 27 m² und 105 m²
+ Helle, freundliche Räume mit großen Fensterflächen
+ Offene Wohn-/Ess-/Kochbereiche in allen Wohnungen
+ Moderne Bäder mit Dusche und/oder...
Preisinformation
Ist-Mieteinnahmen pro Jahr: 70.320,00 EUR
Weitere Informationen
Sonstiges
Die Aller Weser Immobilien GmbH & Co.KG hat sich auf den Verkauf und die Vermietung von hochwertigen Immobilien spezialisiert. Seit Jahren sind wir erfolgreich am Immobilienmarkt tätig. Wir verkaufen und vermieten exklusive und außergewöhnliche Objekte in den bevorzugten Lagen von Achim, Verden, Bremen &...
Anbieter der Immobilie
Aller Weser Immobilien GmbH & Co.KG
Bahnhofstrasse 52, 28832 Achim
Online-ID: 2p63q52
Referenznummer: WDBN775
Finde Angebote wie dieses
Hier geht es zu unserem Impressum, den Allgemeinen Geschäftsbedingungen, den Hinweisen zum Datenschutz und nutzungsbasierter Online-Werbung.