
Crozilla.com
Mirjana Mikulec Real Estate
+38 ···
Nr. anzeigenPreise & Kosten
Provision für Käufer
Bitte beachte, das Angebot kann bei Vertragsabschluss die Zahlung einer Provision beinhalten. Weitere Informationen erhältst Du vom Anbieter.
Das Haus
Baujahr
1936
Details
Objektbeschreibung
Prodaja, Crikvenica - kamena kuca s pogledom na more
Prodaje se vrlo odrzavana, prostrana starinska kuca smjestena na mirnoj lokaciji u sirem centru Crikvenice. Kuca se nalazi na juznoj strani te pruza prekrasan panoramski pogled na more, otok Krk i crikvenicku lucicu koja je udaljena svega 300 metara. Zahvaljujuci...
Weitere Informationen
Stichworte
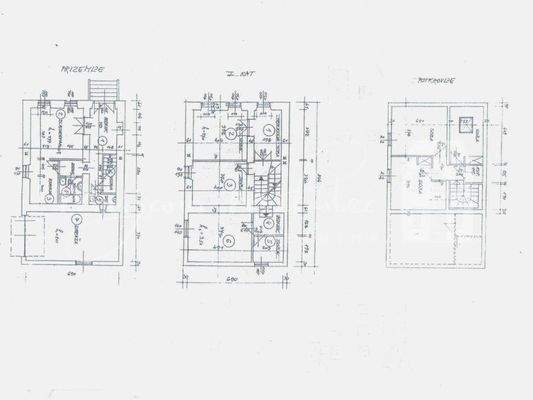
Anzahl der Schlafzimmer: 8, Anzahl der Badezimmer: 3, 1 Etagen
Anbieter der Immobilie
Crozilla.com
Nova cesta 60, 10000 ZAGREB
Online-ID: 2p5zq57
Referenznummer: 18598403_5
Finde Angebote wie dieses
Hier geht es zu unserem Impressum, den Allgemeinen Geschäftsbedingungen, den Hinweisen zum Datenschutz und nutzungsbasierter Online-Werbung.