
McMakler GmbH
Ihr McMakler Team
080 ···
Nr. anzeigenPreise & Kosten
Provision für Käufer
Die Provision i.H.v. 3,57 % inkl. MwSt. ist mit Kaufvertragsbeurkundung fällig, sofern der Verkaufspreis über 83.000,00 € liegt.
Liegt der Verkaufspreis dagegen bei/unter 83. Weitere Informationen siehe Provisionshinweis.
Lage
Lage: Ruhige Feldrandlage mit freier Sicht in den Knick und die Wiesen
Bildung und Betreuung: Stressfreier Morgen dank Kindergarten und Schule in fußläufiger Entfernung
Nahversorgung: Spontan einkaufen dank Supermarkt, Apotheke und Postfiliale in max. 800 m Entfernung
Anbindung: Gut erreichbar: Autobahn, Bahnhof in...
Das Renditeobjekt
Baujahr
2008
Bezug
nach Absprache
Energie & Heizung
Warum sehe ich diese Anzeige? – Du siehst diese Anzeige basierend auf Ihrer Navigation auf unserer Website und den Suchkriterien, die du verwendet hast.
Energieausweistyp
Verbrauchsausweis
Gebäudetyp
Wohngebäude
Baujahr laut Energieausweis
2008
Wesentliche Energieträger
Gas
Effizienzklasse
C
Endenergieverbrauch
93,50 kWh/(m²·a)
Weitere Energiedaten
Energieträger
Gas
Heizungsart
Zentralheizung
Details
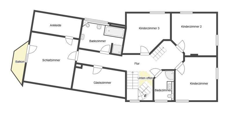
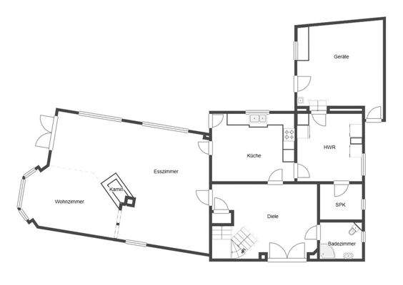
Objektbeschreibung
Objektnr: 1070944
Willkommen in Ihrem neuen Zuhause! Diese im Jahr 2008 erbaute Immobilie überzeugt durch ihren äußerst gepflegten Zustand und ein durchdachtes Raumkonzept, das insbesondere Familien mit Platzbedarf begeistert.
Beim Betreten des Hauses empfängt Sie eine große Diele, die den perfekten Rahmen für...
Ausstattung
+ Große Diele beim Betreten des Hauses - ein einladender Eingangsbereich
+ Heller Wohnbereich dank vieler Fenster, praktisch in Wohn- und Essbereich durch den Kamin getrennt
+ Drei Badezimmer, davon zwei mit Dusche und eines mit Dusche und Badewanne
+ Großzügiges 2.274 m² Grundstück mit Gartenhaus, zwei Terrassen...
Weitere Informationen
Provisionshinweis
Die Provision i.H.v. 3,57 % inkl. MwSt. ist mit Kaufvertragsbeurkundung fällig, sofern der Verkaufspreis über 83.000,00 € liegt.
Liegt der Verkaufspreis dagegen bei/unter 83.000,00 €, ist die fest vereinbarte Mindestprovision i.H.v. mind. 5.950,00 € inkl. MwSt. mit Kaufvertragsbeurkundung fällig...
Anbieter der Immobilie
McMakler GmbH
Am Postbahnhof 17, 10243 Berlin
Online-ID: 2p5yz53
Referenznummer: 09777988f1
Finde Angebote wie dieses
Hier geht es zu unserem Impressum, den Allgemeinen Geschäftsbedingungen, den Hinweisen zum Datenschutz und nutzungsbasierter Online-Werbung.