Bien-Zenker Musterhaus Wuppertal

Herrn Sven Sommerfeld

Kontaktiere den Anbieter schriftlich, es ist keine Telefonnummer hinterlegt.

Ein Neubeginn, der überraschend nah ist.

€ 571.299
Kaufpreis
161 m²
Wohnfläche ca.
5,5
Zimmer
570 m²
Grundstücksfl. ca.

Der Anbieter dieses Objekts hat gegenüber der AVIV Germany GmbH als Betreiber dieses Online-Marktplatzes erklärt, nicht als Unternehmer im Sinne des § 1 KSchG zu handeln. Die im Verbraucherschutzrecht der Union verankerten Verbraucherrechte (insbesondere Informationspflichten und Rücktritts- bzw. Widerrufsrechte) finden auf den Vertrag zwischen dem Anbieter des Objekts und Ihnen (dem Interessenten) keine Anwendung.

Gewerblicher Anbieter

Der Anbieter dieses Objekts hat gegenüber der AVIV Germany GmbH als Betreiber dieses Online-Marktplatzes erklärt, als Unternehmer im Sinne des § 1 KSchG zu handeln.

AdresseStraße nicht freigegeben
59439 Holzwickede 
Auf Karte ansehen

Preise & Kosten

Kaufpreis € 571.299

Provision für Käufer

Bitte beachte, das Angebot kann bei Vertragsabschluss die Zahlung einer Provision beinhalten. Weitere Informationen erhältst Du vom Anbieter.

Lage

Holzwickede ist nicht nur ein idyllischer Wohnort, sondern bietet Ihnen auch eine hervorragende Anbindung an das städtische Leben. In der Umgebung finden Sie eine Vielzahl von Bildungseinrichtungen, wie Schulen und Kindergärten, die bequem erreichbar sind und eine optimale Betreuung Ihrer Kinder garantieren. Auch medizinische...

Mehr anzeigen

Das Haus

Kategorie

Einfamilienhaus

  • Zustand: projektiert
  • Bad mit Fenster, Wanne und Dusche, Gäste-WC
  • offene Küche

Energie & Heizung

Weitere Energiedaten

Haustyp

KfW 40

Heizungsart

Luft-/Wasser-Wärmepumpe

Details

Objektbeschreibung

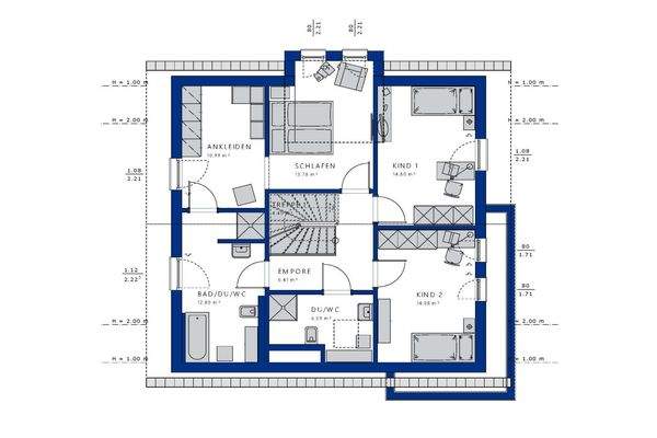
Das Bien-Zenker EVOLUTION 161 verkörpert die perfekte Symbiose aus modernem Design und individueller Gestaltung. Mit einer großzügigen Wohnfläche von 161 m² und einer durchdachten Aufteilung bietet dieses Fertighaus mit 5.5 Zimmern und 3 Etagen genügend Raum für Ihre Familie und deren Bedürfnisse. Die fünf Schlafzimmer...

Mehr anzeigen

Ausstattung

Ausstattung
Gerne planen wir gemeinsam mit Ihnen Ihr exklusives Traumhaus - abgestimmt auf die Ausstattung, die für Sie persönlich den entscheidenden Mehrwert bietet. Bien-Zenker steht seit Jahrzehnten für hochwertige Architektur, energieeffiziente Technik und ein Ausstattungspaket, das bereits im Standard weit über dem...

Mehr anzeigen

Weitere Informationen

Sonstiges
Sonstiges
Um Bauherren im hochwertigen Neubausegment im gesamten Ruhrgebiet zuverlässig zu begleiten, arbeite ich mit einem gewachsenen Netzwerk aus Architekten, Vermessern, Finanzierungspartnern und regionalen Grundstückseigentümern zusammen.
Durch meine Tätigkeit für Bien-Zenker sowie die enge Kooperation...

Mehr anzeigen

Anbieter der Immobilie

Bien-Zenker Musterhaus Wuppertal

Schmiedestraße 59, 42279 Wuppertal

user

Herrn Sven Sommerfeld

Dein Ansprechpartner

Kontaktiere den Anbieter schriftlich, es ist keine Telefonnummer hinterlegt.

Anbieter-Website Anbieter-Profil Anbieter-Impressum

Online-ID: 2p5ru57

Referenznummer: 12216-Holzwickede26143

Finde Angebote wie dieses

imageimageimage

Hier geht es zu unserem Impressum, den Allgemeinen Geschäftsbedingungen, den Hinweisen zum Datenschutz und nutzungsbasierter Online-Werbung.