
ÄRZTE & APOTHEKER IMMOBILIEN
Frau Nadine Kierspel
004 ···
Nr. anzeigenPreise & Kosten
Provision für Käufer
2,38 % inkl. MwSt.
Lage
Die Wohnung befindet sich im grünen Hamburger Stadtteil Sasel - einer der beliebtesten Wohnlagen im Nordosten der Hansestadt. Sasel zeichnet sich durch seine ruhigen Wohnstraßen, großzügigen Grundstücke und die Nähe zur Natur aus. Das Saseler Moor und der Alsterlauf bieten Erholungsmöglichkeiten direkt vor der Haustür.
Die...
Die Wohnung
Wohnungslage
Souterrain
Wohnanlage
Energie & Heizung
Warum sehe ich diese Anzeige? – Du siehst diese Anzeige basierend auf Ihrer Navigation auf unserer Website und den Suchkriterien, die du verwendet hast.
Weitere Energiedaten
Heizungsart
Fußbodenheizung, Luft-/Wasser-Wärmepumpe
Details
Objektbeschreibung
Alle 9 Einheiten finden Sie unter:
Freesienweg.aerzteapotheker.de
Willkommen in Ihrem neuen Zuhause im begehrten Hamburger Stadtteil Sasel. Diese hochwertige 4-Zimmer-Neubauwohnung entsteht in einem exklusiven Mehrfamilienhaus mit insgesamt neun Wohneinheiten. Als Maisonettewohnung erstreckt sie sich über mehrere...
Ausstattung
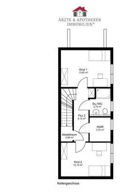
- Maisonette-Grundriss über zwei Ebenen mit klar getrennten Wohn- und Rückzugsbereichen
- Großzügiger Wohn- und Essbereich mit über 26 m² und integrierter Küche
- Überdachte Terrasse direkt vom Wohnbereich
- Zwei separate Kinderzimmer auf eigener Ebene
- Großzügiges Badezimmer mit 7 m² sowie...
Preisinformation
1 Stellplatz, Kaufpreis: 19.000,00 EUR
Weitere Informationen
Sonstiges
Vielen Dank für Ihr Interesse an der von uns angebotenen Immobilie.
Bitte haben Sie Verständnis dafür, dass wir unseren Auftraggebern Diskretion zugesagt haben und Sie daher um die Angabe Ihrer vollständigen Kontaktdaten inkl. Ihrer Telefonnummer bitten müssen.
Gern senden wir Ihnen anschließend ein...
Anbieter der Immobilie
ÄRZTE & APOTHEKER IMMOBILIEN
Lindenstr. 29, 21335 Lüneburg
Online-ID: 2p5pa54
Referenznummer: 252749-3
Finde Angebote wie dieses
Hier geht es zu unserem Impressum, den Allgemeinen Geschäftsbedingungen, den Hinweisen zum Datenschutz und nutzungsbasierter Online-Werbung.