

IFC Immobiliengesellschaft mbH
Herr Paul-Ludwig Blümel
034 ···
Nr. anzeigenPreise & Kosten
Provision für Käufer
Die Provision beträgt 3,5 % vom Kaufpreis (zzgl. der geltenden MwSt.).
Das Haus
Kategorie
Doppelhaushälfte
Geschosse
2 Geschosse
Baujahr
1938
Energie & Heizung
Warum sehe ich diese Anzeige? – Du siehst diese Anzeige basierend auf Ihrer Navigation auf unserer Website und den Suchkriterien, die du verwendet hast.
Energieausweistyp
Bedarfsausweis
Gebäudetyp
Wohngebäude
Baujahr laut Energieausweis
1938
Wesentliche Energieträger
Heizöl EL
Gültigkeit
26.03.2026 bis 26.03.2036
Effizienzklasse
E
Endenergiebedarf
147,60 kWh/(m²·a)
Weitere Energiedaten
Energieträger
Öl
Details
Objektbeschreibung
Raumaufteilung:
Erdgeschoss:
Wohnzimmer, Esszimmer, Schlafzimmer, Küche, Bad, Diele
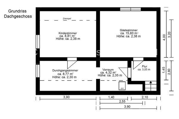
Dachgeschoss:
Kinderzimmer, Gästezimmer, Durchgangszimmer, Flur, Vorraum
Dachspitze:
für Abstellzwecke geeignet
Unter- / Kellergeschoss:
vollständig unterkellert (außer Diele und...
Ausstattung
Dach:
ca. 2014 - Zwischendecke gedämmt, mit glasierten Ziegeln gedeckt
Fassade:
ca. 2014 - gedämmt, geputzt und gestrichen
Fenster:
ca. 2006 - Kunststoff weiß mit Jalousien
Türen:
ca. 2006 - EG: Eiche hell
ca. 2010 - DG: Buche hell
Fußböden:
ca. 2005 - EG/ DG: Laminat, Fliesen...
Weitere Informationen
Extras:
- Kaminanschluss im Ess- und Wohnzimmer möglich
- überdachte Terrasse (ca. 10 m²)
- gepflasterte Zufahrt
- Nebengelass (ca. 14,5 m x 4 m) mit Garage und Abstellraum
Erschließung:
Strom, Wasser, Öl, Erdgas liegt in der Straße an, Kanalisation, Brunnenanschluss, Kabelanschluss, Telefon...
Dokumente
Anbieter der Immobilie

Online-ID: 2p5jv52
Referenznummer: 2062
Finde Angebote wie dieses
Hier geht es zu unserem Impressum, den Allgemeinen Geschäftsbedingungen, den Hinweisen zum Datenschutz und nutzungsbasierter Online-Werbung.