

Gerl Immobilien
Herr Johannes Kerscher
+49 ···
Nr. anzeigenPreise & Kosten
Provision für Käufer
3,57% inkl. MwSt.
Lage
Das Reihenendhaus befindet sich in einem ruhigen Stadtteil von Straubing, einer charmanten Stadt in Niederbayern. Der Stadtteil zeichnet sich durch seine grünen Parkanlagen und familienfreundliche Umgebung aus. In unmittelbarer Nähe befinden sich verschiedene Schulen, Kindergärten, Einkaufsmöglichkeiten und Restaurants. Die...
Das Haus
Kategorie
Mehrfamilienhaus
Baujahr
1996
Bezug
sofort
Energie & Heizung
Warum sehe ich diese Anzeige? – Du siehst diese Anzeige basierend auf Ihrer Navigation auf unserer Website und den Suchkriterien, die du verwendet hast.
Energieausweistyp
Verbrauchsausweis
Gebäudetyp
Wohngebäude
Wesentliche Energieträger
Gas
Gültigkeit
24.02.2026 bis 23.02.2036
Effizienzklasse
B
Endenergieverbrauch
61,70 kWh/(m²·a)
Weitere Energiedaten
Haustyp
Massivhaus
Energieträger
Gas
Heizungsart
Zentralheizung
Details
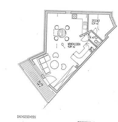
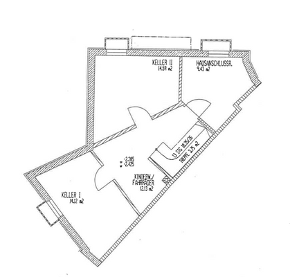
Objektbeschreibung
Kurzübersicht:
Dieses im Jahr 1996 erbaute Reihenendhaus besticht durch eine großzügige Wohnfläche von ca. 148 m², zwei Balkone und eine Terrasse, die den Bewohnern ein gemütliches Plätzchen im Freien bieten. Die Zentralheizung sorgt für wohlige Wärme und wurde zuletzt im Jahr 2023 modernisiert. Auf einer...
Ausstattung
Innenausstattung:
Allgemein
- Kunststofffenster 2-fach-Verglasung
- Rollläden
- Laminat in allen Wohnräumen
- Holztreppe
- Holztüren
Küche
- Einbauküche
- Speisekammer
- Einbauschränke Küche
- Fliesen
Badezimmer EG
- Waschtisch
- Dusche
- Waschmaschinenanschluss
-...
Preisinformation
2 Garagenstellplätze
Weitere Informationen
Sonstiges
Sanierungen:
- 2020: Balkone komplett erneuert
- 2022: Vogelschutz Dachuntersicht
- 2022: Fassade gestrichen
- 2022: Nässeschutz Haus/Terrasse
- 2022: Sprechanlage mit Bildschirmen auf jedem Stockwerk
- 2021: Dachfenster mit Solar-Rollläden erneuert
- 2022: Außenlampen erneuert
- Garten...
Anbieter der Immobilie
Gerl Immobilien
Kolbstr. 2, 94315 Straubing

Online-ID: 2p5jb57
Referenznummer: 135508344#ludwVC
Finde Angebote wie dieses
Hier geht es zu unserem Impressum, den Allgemeinen Geschäftsbedingungen, den Hinweisen zum Datenschutz und nutzungsbasierter Online-Werbung.