
Heitsch & CIE. Management eG
Herr Louis Heitsch
004 ···
Nr. anzeigenPreise & Kosten
Provision für Käufer
3,57% inkl. MwSt.
Lage
Als Landeshauptstadt Schleswig-Holsteins bietet Kiel mit rund 250.000 Einwohnern und seiner Bedeutung als Universitäts-, Wirtschafts- und Hafenstadt eine hohe Attraktivität für Unternehmen, Berufstätige und Studierende. Die unmittelbare Lage an der Kieler Förde, der bedeutende Hafen als Marinestützpunkt und Kreuzfahrtstandort...
Die Wohnung
Wohnungslage
2. Geschoss
Wohnanlage
Energie & Heizung
Warum sehe ich diese Anzeige? – Du siehst diese Anzeige basierend auf Ihrer Navigation auf unserer Website und den Suchkriterien, die du verwendet hast.
Energieausweistyp
Verbrauchsausweis
Gebäudetyp
Wohngebäude
Baujahr laut Energieausweis
1903
Wesentliche Energieträger
FERN
Gültigkeit
bis 03.06.2033
Effizienzklasse
D
Endenergieverbrauch
104,00 kWh/(m²·a)
Weitere Energiedaten
Energieträger
Fernwärme
Details
Objektbeschreibung
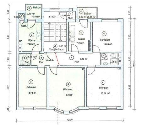
Diese außergewöhnliche 4-Zimmer-Wohnung befindet sich in einem gepflegten Mehrfamilienhaus aus dem Jahr 1903, das insgesamt 10 Wohneinheiten umfasst. Die Wohnung entstand durch die Zusammenlegung von zwei Einheiten, wodurch sie heute besonders großzügig geschnitten ist. Bei Bedarf können die beiden Einheiten problemlos wieder...
Weitere Informationen
Stichworte
Energieversorgung mit alternativen Energien, Anzahl der Schlafzimmer: 2, Anzahl der Badezimmer: 2, Anzahl Balkone: 2, 5 Etagen
Anbieter der Immobilie
Heitsch & CIE. Management eG
Theodorstraße 31, 22761 Hamburg
Online-ID: 2p5gs57
Referenznummer: 26-LH-0514
Finde Angebote wie dieses
Hier geht es zu unserem Impressum, den Allgemeinen Geschäftsbedingungen, den Hinweisen zum Datenschutz und nutzungsbasierter Online-Werbung.