
Schantl ITH Immobilientreuhand GmbH
Herr Samir Agha-Schantl
004 ···
Nr. anzeigenPreise & Kosten
Provision für Käufer
3% des Kaufpreises zzgl. 20% USt.
Lage
Wohnqualität pur - Traumlage beim Lainzer Tiergarten!
Genießen Sie die Ruhe und die Natur abseits vom City-Stress... Diese Lage lässt das Herz von Naturliebhabern höher schlagen!
Highloghts in der Nähe: Lainzer Tiergarten, Roter Berg, Skianlage Dollwiese, Hörndlwald, Hohenauer Teich, Schönbrunn uvm...
Öffentliche...
Die Wohnung
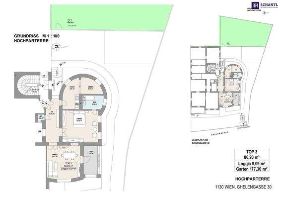
Wohnungslage
Erdgeschoss
Bezug
ab sofort
Wohnanlage
Energie & Heizung
Warum sehe ich diese Anzeige? – Du siehst diese Anzeige basierend auf Ihrer Navigation auf unserer Website und den Suchkriterien, die du verwendet hast.
Heizwärmebedarf (HWB)
158,90 kWh/(m²·a)
Gesamtenergieeffizienz (fGEE)
2,24
Weitere Energiedaten
Energieträger
Gas
Heizungsart
Etagenheizung
Details
Objektbeschreibung
Traumhafte Gartenwohnung in Hietzing mit Sanierungspotenzial in absoluter Ruhelage! Historisches und saniertes Villengebäude + Hochwertiges Umfeld!
Gartenidylle trifft Gestaltungsfreiheit in Hietzing!
Ihre neue Gartenwohnung wird Sie begeistern und bietet Ihnen die Möglichkeit, den Feinschliff ganz...
Weitere Informationen
Stichworte
Fahrradraum, Nutzfläche: 113,02 m², Anzahl der Badezimmer: 1, Anzahl der separaten WCs: 1, Kellerfläche: 1,56 m², Bundesland: Wien, 4 Etagen
Anbieter der Immobilie

Schantl ITH Immobilientreuhand GmbH
Messendorferstraße 71a, 8041 Graz
Online-ID: 2p5ge56
Referenznummer: OBGC202603311916485397c54940268
Finde Angebote wie dieses
Günstige Immobilienfinanzierung einfach online berechnen
Persönliches Angebot berechnenWarum sehe ich diese Werbung? – Du siehst diese Werbung basierend auf Deiner Navigation auf unserer Website und der von Dir verwendeten Suchkriterien.
Diese Werbung wird bezahlt von durchblicker
Werbung melden
Hier geht es zu unserem Impressum, den Allgemeinen Geschäftsbedingungen, den Hinweisen zum Datenschutz und nutzungsbasierter Online-Werbung.