

Endlich zu Hause Immobilien
Frau Friederike Tiede
040 ···
Nr. anzeigenPreise & Kosten
Provision für Käufer
3,57% inkl. MwSt.
Lage
Hamburg - Spadenland:
Obgleich dieser Ortsteil in nicht allzu weiter Entfernung zur HafenCity liegt, weist er einen dörflich-ländlichen Charakter auf. Direkt hinter dem Norderelbdeich liegt die angebotene Immobilie.
Einkaufe für den täglichen Bedarf (z.B. Edeka, Getränkemarkt, Apotheke, Friseur, Imbiss) können im...
Die Wohnung
Kategorie
Maisonette
Wohnanlage
Energie & Heizung
Warum sehe ich diese Anzeige? – Du siehst diese Anzeige basierend auf Ihrer Navigation auf unserer Website und den Suchkriterien, die du verwendet hast.
Energieausweistyp
Bedarfsausweis
Gebäudetyp
Wohngebäude
Baujahr laut Energieausweis
2015
Wesentliche Energieträger
GAS
Gültigkeit
bis 16.03.2036
Effizienzklasse
A
Endenergiebedarf
34,00 kWh/(m²·a)
Weitere Energiedaten
Energieträger
Gas
Heizungsart
Fußbodenheizung
Details
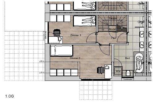
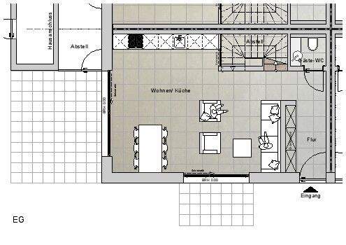
Objektbeschreibung
Im angebotenen Townhouse, einem Viertel eines modernen Quadrohauses, finden Sie Ihr neues Zuhause! Auf drei Etagen mit Terrassen, kleinem Garten und Abstellraum können Wohnträume verwirklicht werden.
Die Immobilie wurde als Architektenhaus mit einem puristischen lichtdurchfluteten Design und funktionalen...
Ausstattung
- großzügiger Wohn-Essbereich
- Fußbodenheizung
- Eichenholzdielen in den 2 oberen Etagen
- moderne Bäder
- Schlafzimmer mit Ausblick
- Eichenvollholztreppen
- Süd- und Süd-Ostterrassen
- kleiner Gartenteil
- Abstellraum innerhalb und außerhalb des Gebäudes
Preisinformation
1 Stellplatz
Weitere Informationen
Sonstiges
GELDWÄSCHE: Als Immobilienmaklerunternehmen ist die ENDLICH ZU HAUSE Immobilien* Tochter der Baufi Akademie GmbH nach § 2 Abs. 1 Nr. 14 und § 11 Abs. 1, 2 Geldwäschegesetz (GwG) dazu verpflichtet, bei der Begründung einer Geschäftsbeziehung die Identität des Vertragspartners festzustellen und zu überprüfen, bzw...
Dokumente
Anbieter der Immobilie
Endlich zu Hause Immobilien
Bahnhofstraße 11 c, 21465 Reinbek

Online-ID: 2p5eg57
Referenznummer: FT-20260329
Finde Angebote wie dieses
Hier geht es zu unserem Impressum, den Allgemeinen Geschäftsbedingungen, den Hinweisen zum Datenschutz und nutzungsbasierter Online-Werbung.