
Rhein-Main-Immobilienpartner
Herr Thomas Möller
Kontaktiere den Anbieter schriftlich, es ist keine Telefonnummer hinterlegt.
Preise & Kosten
Provision für Käufer
3,57% vom notariellen Kaufpreis inkl. gesetzl. MwSt.
Lage
Willkommen in der Frankfurter Straße 46-48 - hier genießen Sie zentrales Wohnen mit bester Anbindung, lebendigem Stadtgefühl und allem, was das Herz begehrt! Diese Adresse ist nicht nur ein perfekter Wohnstandort, sondern auch ein echter Lebensmittelpunkt mit kurzen Wegen und unzähligen Möglichkeiten.
?? Top-Lage mit...
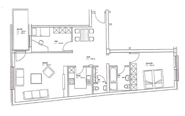
Die Wohnung
Wohnungslage
5. Geschoss
Bezug
sofort
Wohnanlage
Energie & Heizung
Warum sehe ich diese Anzeige? – Du siehst diese Anzeige basierend auf Ihrer Navigation auf unserer Website und den Suchkriterien, die du verwendet hast.
Energieausweistyp
Verbrauchsausweis
Gebäudetyp
Wohngebäude
Wesentliche Energieträger
Gas
Gültigkeit
06.06.2018 bis 05.06.2028
Effizienzklasse
B
Endenergieverbrauch
57,00 kWh/(m²·a) - Warmwasser enthalten
Weitere Energiedaten
Energieträger
Gas
Heizungsart
Zentralheizung
Details
Objektbeschreibung
Attraktive 3-Zimmer-Wohnung mit Balkon, TG-Stellplatz & Einbauküche in zentraler Lage von Dreieich-Sprendlingen
Diese gepflegte 3-Zimmer-Wohnung im 5. Obergeschoss eines ebenso gepflegten Mehrfamilienhauses überzeugt durch ihre klare Struktur, ihre Helligkeit und vor allem durch ihre zentrale Lage im Herzen von...
Ausstattung
Die Wohnung überzeugt durch eine durchdachte, alltagstaugliche Ausstattung, die sowohl Eigennutzer als auch Kapitalanleger anspricht.
Der Wohnbereich bildet den zentralen Lebensmittelpunkt. Durch die großen Fensterflächen entsteht eine angenehme Helligkeit, die den Raum offen und einladend wirken lässt. Von hier aus...
Preisinformation
1 Stellplatz
Weitere Informationen
Sonstiges
?? Kurzzusammenfassung: Alle Vorteile auf einen Blick!
? Top-Lage in Dreieich-Sprendlingen - zentral, lebendig & perfekt angebunden
? Beste Verkehrsanbindung - 15 Min. zum Flughafen, S-Bahn, Autobahn (A661/A3)
? Einkaufsparadies vor der Tür - Supermärkte, Wochenmarkt, Fachgeschäfte & mehr
...
Anbieter der Immobilie
Rhein-Main-Immobilienpartner
Schafhofstr. 10, 63329 Egelsbach
Herr Thomas Möller
Dein Ansprechpartner
Kontaktiere den Anbieter schriftlich, es ist keine Telefonnummer hinterlegt.
Online-ID: 2p5cj56
Referenznummer: 72#EbZHgQ
Finde Angebote wie dieses
Hier geht es zu unserem Impressum, den Allgemeinen Geschäftsbedingungen, den Hinweisen zum Datenschutz und nutzungsbasierter Online-Werbung.