
Schwedler GmbH
004 ···
Nr. anzeigenPreise & Kosten
Provision für Käufer
0%
Lage
Das Grundstück befindet sich in Liepe, einer kleinen, charmanten Gemeinde im Landkreis Barnim im Nordosten Brandenburgs. Eingebettet zwischen Eberswalde und Oderberg liegt der Ort in einer besonders reizvollen Landschaft aus Wäldern, Wasserflächen und weiten Wiesen. Die Region ist geprägt von Ruhe, Naturverbundenheit und...
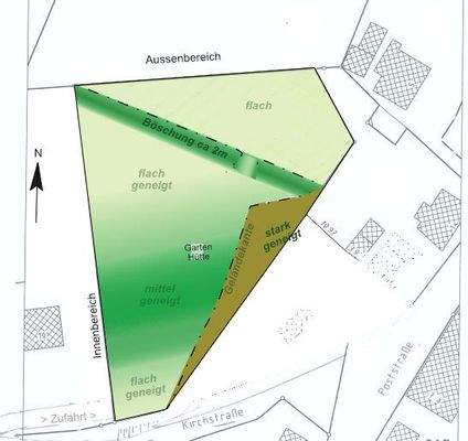
Das Grundstück
Details
Objektbeschreibung
Bitte fordern Sie Ihr persönliches Exposé mit weiteren Bildern und Unterlagen sowie der Adresse an.
Zum Verkauf steht ein außergewöhnlich großzügiges, bauträgerfreies Grundstück mit einer Gesamtfläche von ca. 2.203 m² - ein Ort, der Raum für individuelle Architektur, Naturverbundenheit und ein ganz besonderes Zuhause...
Ausstattung
- ca. 2.203qm Grundstücksgröße
- bauträgerfrei
- bebaubar nach §34 BauGB - entsprechend der Umgebungsbebauung
- im vorderen Teil mit ca. 800qm bebaubar
- Umgebungsbebauung mit großen Einfamilienhäusern (zweistöckig + Dach)
- Hang neigt sich Richtung Süden
- teilerschlossen mit Gemeindewasser, Strom liegt in...
Weitere Informationen
Sonstiges
Ob Sie diese oder eine andere Immobilie kaufen möchten - für Sie stellen wir eine individuelle Finanzierung zusammen. Dafür vergleichen wir über 40 Banken! Im Exposé genannte Konditionen sind unverbindlich und freibleibend. Es wird der effektive Jahreszins inkl. 1,5% Tilgung gem. §6 Abs.1 PAngV genannt: 90%...
Anbieter der Immobilie
Online-ID: 2p5bg54
Referenznummer: 3601
Finde Angebote wie dieses
Hier geht es zu unserem Impressum, den Allgemeinen Geschäftsbedingungen, den Hinweisen zum Datenschutz und nutzungsbasierter Online-Werbung.