

Gräser Immobilien
Frau Melanie Deutsch
081 ···
Nr. anzeigenPreise & Kosten
Provision für Käufer
provisionsfrei
Lage
Willkommen in Gilching - einem der begehrtesten Wohnorte im Landkreis Starnberg. Nur wenige Minuten von der Landeshauptstadt entfernt, verbindet die Gemeinde ideale Infrastruktur mit hohem Freizeitwert. Ob Familien, Berufspendler oder Naturliebhaber - wer Wert auf kurze Wege, eine gehobene Nachbarschaft und hervorragende...
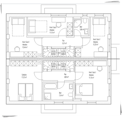
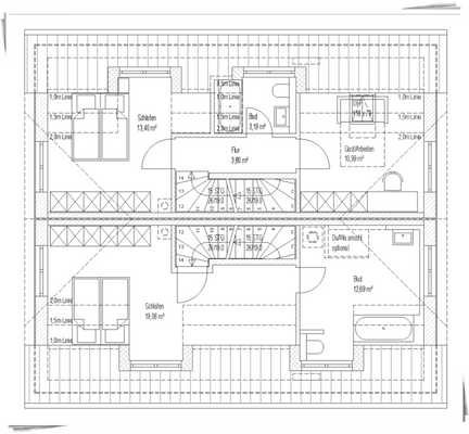
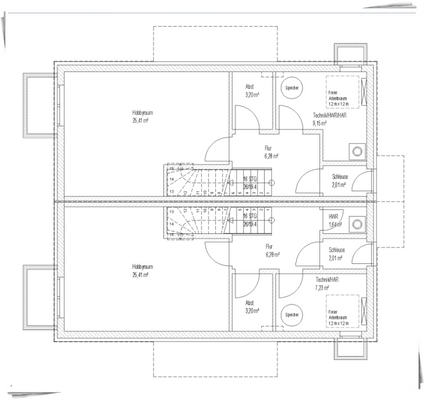
Das Haus
Kategorie
Doppelhaushälfte
Baujahr
2026
Bezug
nach Vereinbarung
Energie & Heizung
Warum sehe ich diese Anzeige? – Du siehst diese Anzeige basierend auf Ihrer Navigation auf unserer Website und den Suchkriterien, die du verwendet hast.
Energieausweistyp
Bedarfsausweis
Gebäudetyp
Wohngebäude
Baujahr laut Energieausweis
2026
Gültigkeit
bis 11.12.2035
Effizienzklasse
A+
Endenergiebedarf
23,20 kWh/(m²·a)
Weitere Energiedaten
Haustyp
KfW 55
Energieträger
Solar
Heizungsart
Fußbodenheizung, Luft-/Wasser-Wärmepumpe
Details
Objektbeschreibung
Ostermontag Besichtigung nach verheriger Vereinbarung 0174-7777382
Willkommen in Ihrem neuen Zuhause...!
Im wunderschönen 5-Seenland, nicht weit von den bayerischen Alpen und der Landeshauptstadt München wartet Ihr zukünftiges Familienheim auf Sie.
Perfekte Aufteilung mit flexiblen Grundrissen, sonnigem...
Ausstattung
Ausstattung
* Realteilung
* Energieeffiziente Wärmepumpe
* Photovoltaik-Anlage mit Energiespeicher
* Dezentrale Lüftungsanlage für optimales Raumklima
* Wärmedämmendes, energiesparendes Außenwandsystem (Ziegelmassivbauweise)
* Fußbodenheizung in allen Wohnräumen mit Einzelsteuerung
* 3-fach verglaste...
Preisinformation
2 Tiefgaragenstellplätze, Kaufpreis je: 18.750,00 EUR
Weitere Informationen
Sonstiges
Ostermontag Besichtigung nach verheriger Vereinbarung 0174-7777382
ZUR BEACHTUNG:
Dieses Angebot ist freibleibend und unverbindlich - Irrtum sowie Zwischenverkauf bzw. Zwischenvermietung bleiben vorbehalten.
Die Angaben basieren auf Informationen des Eigentümers und der Behörden; eine Haftung...
Dokumente
Anbieter der Immobilie
Gräser Immobilien
Melchior-Fanger-Str. 31, 82205 Gilching

Online-ID: 2p5a956
Referenznummer: 2230_2NP
Finde Angebote wie dieses
Hier geht es zu unserem Impressum, den Allgemeinen Geschäftsbedingungen, den Hinweisen zum Datenschutz und nutzungsbasierter Online-Werbung.