
Crozilla.com
Dogma nekretnine
+38 ···
Nr. anzeigenPreise & Kosten
Provision für Käufer
Bitte beachte, das Angebot kann bei Vertragsabschluss die Zahlung einer Provision beinhalten. Weitere Informationen erhältst Du vom Anbieter.
Die Immobilie
Zu diesem Angebot wurden vom Anbieter keine weiteren Daten hinterlegt. Für weitere Informationen bitte den Anbieter kontaktieren.
Nach Informationen fragenDetails
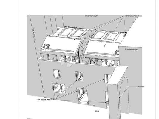
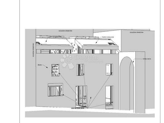
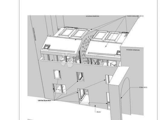
Objektbeschreibung
ID CODE: 16439
Ruzica Jurisic
Agent s licencom
Mob: 091/503-2253
Tel: +385 51 341 080
E-mail: ruzica.jurisic@dogma-nekretnine.com
www.dogma-nekretnine.com
Weitere Informationen
Stichworte
Anzahl der Schlafzimmer: 8, 1 Etagen
Anbieter der Immobilie
Crozilla.com
Nova cesta 60, 10000 ZAGREB
Online-ID: 2p52z53
Referenznummer: 18663827_2
Finde Angebote wie dieses
Hier geht es zu unserem Impressum, den Allgemeinen Geschäftsbedingungen, den Hinweisen zum Datenschutz und nutzungsbasierter Online-Werbung.