

Immobilien Gesellschaft mbH der Frankfurter Volksbank Rhein/Main
Frau Janina Geis
061 ···
Nr. anzeigenPreise & Kosten
Provision für Käufer
3,57% inkl. MwSt.
Wir haben einen provisionspflichtigen Maklervertrag mit dem Verkäufer in gleicher Höhe abgeschlossen.
Lage
Die Immobilie befindet sich in Pflaumheim, einem beliebten Ortsteil der Marktgemeinde Großostheim im unterfränkischen Landkreis Aschaffenburg. Pflaumheim zeichnet sich durch seinen dörflichen Charme, eine gewachsene Infrastruktur und eine naturnahe Umgebung aus und bietet eine hohe Wohn- und...
Das Haus
Kategorie
Mehrfamilienhaus
Baujahr
1962
Energie & Heizung
Warum sehe ich diese Anzeige? – Du siehst diese Anzeige basierend auf Ihrer Navigation auf unserer Website und den Suchkriterien, die du verwendet hast.
Energieausweistyp
Bedarfsausweis
Gebäudetyp
Wohngebäude
Baujahr laut Energieausweis
1962
Wesentliche Energieträger
OEL
Gültigkeit
bis 25.03.2036
Effizienzklasse
H
Endenergiebedarf
375,00 kWh/(m²·a)
Weitere Energiedaten
Energieträger
Öl
Heizungsart
Fußbodenheizung, Zentralheizung
Details
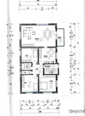
Objektbeschreibung
Zum Verkauf steht ein großzügiges Zweifamilienhaus auf einem ca. 696 m² großen Grundstück, das vielfältige Nutzungsmöglichkeiten bietet und sich ideal für Familien, Mehrgenerationenwohnen oder Kapitalanleger eignet. Das ursprünglich im Jahr 1962 erbaute Haus wurde im Jahr 1973 durch einen Anbau erweitert und 1997 aufgestockt...
Ausstattung
- Zweifamilienhaus mit ca. 238,46 m² Wohnfläche auf zwei Wohnungen
- Erdgeschosswohnung: 4 Zimmer, 117,30 m², renovierungsbedürftig
- Obergeschosswohnung: 4 Zimmer, 121,16 m², modernisiert 2003
- Fußbodenheizung im Wohnzimmer und Badezimmer der Obergeschosswohnung und
Balkon in der...
Preisinformation
2 Garagenstellplätze
Weitere Informationen
Sonstiges
Die Wohnung im Obergeschoss ist aktuell bewohnt und nach Absprache verfügbar.
Gerne stehen wir Ihnen für ein Beratungs- und Besichtigungstermin zur Verfügung.
Sie möchten selbst eine Immobilie verkaufen?
Wir ermitteln einen seriösen und marktgerechten Wert Ihrer Immobilie. Mit einem individuell...
Anbieter der Immobilie
Immobilien Gesellschaft mbH der Frankfurter Volksbank Rhein/Main
Seligenstädter Str. 52, 63179 Obertshausen

Online-ID: 2p4zs57
Referenznummer: 12480
Finde Angebote wie dieses
Hier geht es zu unserem Impressum, den Allgemeinen Geschäftsbedingungen, den Hinweisen zum Datenschutz und nutzungsbasierter Online-Werbung.