
ohne-makler.net - Immobilien selbst vermarkten
Privat vom Eigentümer
Kontaktiere den Anbieter schriftlich, es ist keine Telefonnummer hinterlegt.
Preise & Kosten
Provision für Käufer
provisionsfrei
Lage
Der beliebte Hamburger Stadtteil Volksdorf zeichnet sich durch seine naturnahe Lage aus. Wiesen, Felder und Grünanlagen mit Wanderwegen laden zu ausgedehnten Spaziergängen und zum Verweilen ein. In unmittelbarer Nähe befindet sich das gemütliche Zentrum von Volksdorf mit vielen Einkaufsmöglich-keiten und toller Gastronomie...
Das Haus
Kategorie
Doppelhaushälfte
Baujahr
2026
Bezug
nach Absprache
Energie & Heizung
Warum sehe ich diese Anzeige? – Du siehst diese Anzeige basierend auf Ihrer Navigation auf unserer Website und den Suchkriterien, die du verwendet hast.
Weitere Energiedaten
Heizungsart
Luft-/Wasser-Wärmepumpe, Zentralheizung
Details
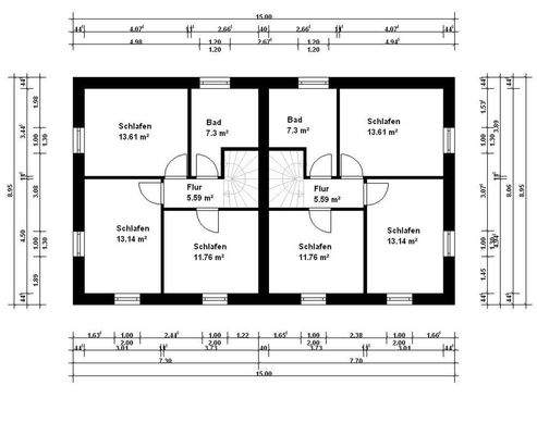
Objektbeschreibung
Auf diesem tollen Grundstück inmitten des Volksdorfer Villenviertels entstehen
2 kleine aber feine Stadtvillen mit pflegeleichten Grundstücksgrößen. Die Häuser werden in massiver Bauweise errichtet und können individuell geplant und von den Käufern je nach Bedarf geändert...
Ausstattung
Bemerkungen:
Unsere Häuser werden grundsätzlich massiv gebaut.
Die Wände z.B. der Hersteller Silka oder Ytong werden
auch im 1. Stock massiv gemauert. Wir verzichten
bewusst auf Leichtbau- oder Trockenbauwände.
Klinkerfassaden kommen z.B. von Olfry mit dem speziellen
Ausblühschutz.
Zum Einbau...
Weitere Informationen
Sonstiges
Heizungsart: Zentralheizung
Energieträger: Luft-/Wasserwärme
Energieausweis nicht vorhanden
Im Kaufpreis enthalten:
- Grundstücksanteil - Baunebenkosten
- Hausanschlüsse - Schlüsselfertiges Haus
Folgende...
Anbieter der Immobilie
ohne-makler.net - Immobilien selbst vermarkten
Humboldtstr. 25 A, 21509 Glinde
Privat vom Eigentümer
Dein Ansprechpartner
Kontaktiere den Anbieter schriftlich, es ist keine Telefonnummer hinterlegt.
Online-ID: 2p4vb57
Referenznummer: 443063
Finde Angebote wie dieses
Hier geht es zu unserem Impressum, den Allgemeinen Geschäftsbedingungen, den Hinweisen zum Datenschutz und nutzungsbasierter Online-Werbung.