
allkauf haus Südwest
Frau Karen Jäger
+49 ···
Nr. anzeigenPreise & Kosten
Provision für Käufer
provisionsfrei
Lage
Ettenheim empfängt Sie mit dem unverwechselbaren Charme einer kleinen Stadt und bietet Ihnen zahlreiche Möglichkeiten. Alles, was Sie im Alltag brauchen, finden Sie ganz in Ihrer Nähe: Einkaufsmöglichkeiten, Schulen, abwechslungsreiche Freizeitangebote und die wohltuende Natur direkt vor der Tür. Hier erleben Sie Freiheit...
Das Haus
Kategorie
Doppelhaushälfte
Baujahr
2026
Energie & Heizung
Warum sehe ich diese Anzeige? – Du siehst diese Anzeige basierend auf Ihrer Navigation auf unserer Website und den Suchkriterien, die du verwendet hast.
Weitere Energiedaten
Haustyp
KfW 40
Heizungsart
Fußbodenheizung, Luft-/Wasser-Wärmepumpe
Details
Objektbeschreibung
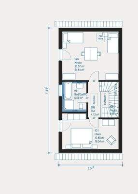
Stellen Sie sich vor, wie Ihr Traum vom perfekten Zuhause in Ettenheim Form annimmt. Auf etwa 114 m², verteilt auf zwei lichtdurchflutete Ebenen, erwartet Sie ein Ort, an dem jeder Tag neue Glücksmomente bereithält. Drei großzügige Zimmer bieten Ihnen und Ihrer Familie den Freiraum, das Leben nach Ihren Vorstellungen zu...
Ausstattung
Ihre Ausstattung überzeugt durch Liebe zum Detail:
- Inklusive Architektenleistung und Bauantrag
- Bodenplatte mit Frostschürze für dauerhafte Stabilität
- Kontrollierte Wohnraumlüftung mit Wärmerückgewinnung für ein gesundes Raumklima
- Luft-Wasser-Wärmepumpe und Fußbodenheizung für wohlige Wärme
-...
Weitere Informationen
Sonstiges
allkauf heißt für Sie:
- Maximale Gestaltungsfreiheit und individuelle Planung
- Höchste Qualität durch Markenprodukte
- Sicherheit und Transparenz bei allen Abläufen
- Persönliche Betreuung von Anfang an
Zu allen Häusern gehört:
- Architektenleistung
- KfW 40 Standard
-...
Anbieter der Immobilie
allkauf haus Südwest
Am Alten Schwimmbad 5, 66450 Bexbach
Online-ID: 2p4mu56
Referenznummer: 4032-336-KW-14-71516
Finde Angebote wie dieses
Hier geht es zu unserem Impressum, den Allgemeinen Geschäftsbedingungen, den Hinweisen zum Datenschutz und nutzungsbasierter Online-Werbung.