
DEGEN + SIEMERS
Horst Siemers
044 ···
Nr. anzeigenPreise & Kosten
Provision für Käufer
Die Courtage für beide Parteien (Eigentümer und Käufer) berechnet und beträgt in diesem Fall je 2,5% zzgl. MwSt. vom beurkundeten Kaufpreis.
Lage
Das Einfamilienhaus befindet sich in einer gewachsenen Siedlung ca. 1,8 km vom Berner Rathaus und dem Bahnhof entfernt. Zum Fähranleger Berne/Farge sind es nur 1,3 km und nach Elsfleth 8 km. Delmenhorst erreichen Sie in ca. 20 Autominuten.
Das Haus
Kategorie
Einfamilienhaus
Baujahr
1964
Bezug
sofort
Energie & Heizung
Warum sehe ich diese Anzeige? – Du siehst diese Anzeige basierend auf Ihrer Navigation auf unserer Website und den Suchkriterien, die du verwendet hast.
Energieausweistyp
Bedarfsausweis
Gebäudetyp
Wohngebäude
Baujahr laut Energieausweis
1963
Wesentliche Energieträger
Gas
Gültigkeit
25.03.2026 bis 24.03.2036
Effizienzklasse
F
Endenergiebedarf
191,40 kWh/(m²·a)
Weitere Energiedaten
Energieträger
Gas
Heizungsart
Zentralheizung
Details
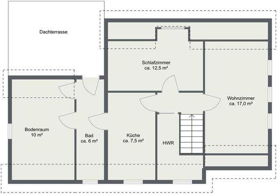
Objektbeschreibung
Das Wohnhaus wurde 1964 in solider Massivbauweise errichtet und bietet Ihnen 2 Nutzbarkeiten. Es eignet sich als Einfamilienhaus oder auch für eine Nutzung mit separater Einliegerwohnung im Dachgeschoss. Ein trockener Teilkeller ist vorhanden. Im hinteren Grundstücksteil befindet sich der Garten, dort haben Kinder Platz und...
Weitere Informationen
Sonstiges
Besichtigungstermine: Gewünschte Besichtigungstermine vereinbaren wir aus organisatorischen Gründen nur telefonisch.
WIR BITTEN UM VERSTÄNDNIS DAFÜR, DASS WIR DETAILLIERTE INFORMATIONEN ZU UNSEREM OBJEKTANGEBOT NUR ERTEILEN, WENN SIE IN DER MAIL-ANFRAGE IHRE VOLLSTÄNDIGE ADRESSE UND TELEFONNUMMER...
Anbieter der Immobilie
Online-ID: 2p4lt56
Referenznummer: 908 (1/908)
Finde Angebote wie dieses
Hier geht es zu unserem Impressum, den Allgemeinen Geschäftsbedingungen, den Hinweisen zum Datenschutz und nutzungsbasierter Online-Werbung.