

Schichtel & Partner Immobilien
Frau Franziska Wehlers
+49 ···
Nr. anzeigenPreise & Kosten
Provision für Käufer
3,57 % (inkl. 19,00 % MwSt.) vom Käufer
Lage
Die Immobilie befindet sich am Westerdeich im Bremer Stadtteil Woltmershausen, einem gewachsenen und naturnahen Wohngebiet im Südwesten Bremens mit direktem Deich- und Weserbezug. Die Weser liegt nur etwa 80 Meter entfernt.
Spaziergänge, Joggingrunden oder Fahrradtouren am Wasser beginnen somit unmittelbar vor der...
Das Haus
Kategorie
Mehrfamilienhaus
Baujahr
1910
Bezug
Nach Vereinbarung
Derzeitige Nutzung
vermietet
Energie & Heizung
Warum sehe ich diese Anzeige? – Du siehst diese Anzeige basierend auf Ihrer Navigation auf unserer Website und den Suchkriterien, die du verwendet hast.
Energieausweistyp
Bedarfsausweis
Gebäudetyp
Wohngebäude
Baujahr laut Energieausweis
1993
Wesentliche Energieträger
GAS
Gültigkeit
bis 09.06.2034
Endenergiebedarf
157,00 kWh/(m²·a)
Weitere Energiedaten
Energieträger
Gas
Heizungsart
Zentralheizung
Details
Objektbeschreibung
Was macht ein Zweifamilienhaus zu einer wirklich soliden Kapitalanlage?
Vor allem dann, wenn Vermietung, Lage und Substanz stimmig ineinandergreifen. Genau dieses Zusammenspiel bietet dieses vermietete Zweifamilienhaus in direkter Deichnähe.
Eine ruhige Wohnstraße, kurze Wege an die Weser und gleichzeitig eine...
Ausstattung
- Vermietetes Zweifamilienhaus in direkter Deichnähe
- Baujahr ca. 1910
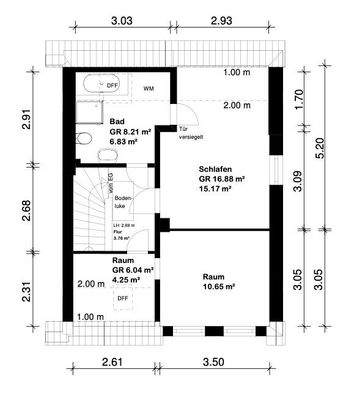
- Wohnfläche ca. 141 m²
- Nutzfläche ca. 20 m²
- Zwei abgeschlossene Wohneinheiten
- Sechs Zimmer insgesamt
- Monatliche Kaltmiete gesamt ca. 1.830 €
- Wohnung im Erd- und Dachgeschoss mit Balkon
-...
Preisinformation
Ist-Mieteinnahmen pro Jahr: 21.960,00 EUR
Weitere Informationen
Stichworte
Nutzfläche: 20,00 m², vermietbare Fläche: 141,00 m², Anzahl der Schlafzimmer: 4, Anzahl der Badezimmer: 2, Anzahl Balkone: 1, Anzahl Terrassen: 1, Anzahl der Wohneinheiten: 2
Anbieter der Immobilie

Online-ID: 2p4le57
Referenznummer: SP786A
Finde Angebote wie dieses
Hier geht es zu unserem Impressum, den Allgemeinen Geschäftsbedingungen, den Hinweisen zum Datenschutz und nutzungsbasierter Online-Werbung.