
Klassen Immobillien
Willi Klassen
+49 ···
Nr. anzeigenPreise & Kosten
Provision für Käufer
provisionsfrei
Lage
Die Bürofläche befindet sich in **stadtnaher Lage von Aulendorf** und verbindet kurze Wege mit einer angenehmen, ruhigen Umgebung. Einkaufsmöglichkeiten, Cafés und Restaurants sind bequem erreichbar, während nahegelegene Grünflächen Raum für kleine Pausen im Freien bieten.
Die charmante Stadt **Aulendorf** liegt im...
Die Ladenfläche
Kategorie
Laden
Baujahr
1993
Bezug
nach Absprache
1. Geschoss
Energie & Heizung
Warum sehe ich diese Anzeige? – Du siehst diese Anzeige basierend auf Ihrer Navigation auf unserer Website und den Suchkriterien, die du verwendet hast.
Wärme
Energieausweistyp
Verbrauchsausweis
Gebäudetyp
Nicht-Wohngebäude
Wesentliche Energieträger
Gas
Gültigkeit
05.04.2019 bis 05.04.2029
Endenergieverbrauch (Wärme)
86,91 kWh/(m²·a) - Warmwasser enthalten
Weitere Energiedaten
Energieträger
Gas
Heizungsart
Zentralheizung
Details
Objektbeschreibung
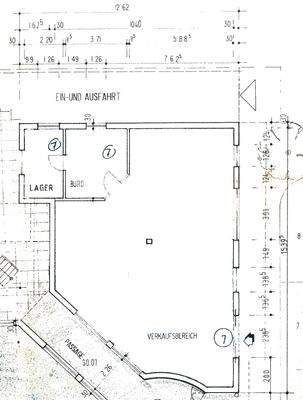
Diese vielseitig nutzbare Gewerbeeinheit befindet sich in gut erreichbarer Lage, unweit von Aulendorfs Innenstadt und bietet auf rund 155 m² Gesamtfläche ideale Voraussetzungen für unterschiedlichste gewerbliche Nutzungen.
Die Fläche/Grundriss wurde vor rund zwölf Jahren zu einem modernen und funktionalen Büro umgebaut und...
Ausstattung
Fläche Büro: ca. 136 m²
Keller: ca. 37 m² (18 m² Nutzfläche)
Gesamtfläche: ca. 155 m²
Ausstattung:
Empfangsbereich
Besprechungszimmer
bis zu 15 Arbeitsplätze möglich
Küche ca. 17,3 qm
WC
Abstellraum
Kellerlager (gesamt ca. 37qm)
2 Tiefgaragenstellplätze...
Preisinformation
2 Garagenstellplätze
Weitere Informationen
Sonstiges
Die Firma Klassen Immobilien und deren Mitarbeiter übernehmen keine Haftung.
Alle weitergegebenen Informationen und Exposés zur Immobilie sind ausschließlich zur Vorabinformation bestimmt.
KLASSEN-IMMOBILIEN ist berechtigt, für den Verkäufer und Käufer Provisionspflichtig tätig zu werden.
Sie schließen...
Anbieter der Immobilie
Klassen Immobillien
Schillerstr. 2, 88326 Aulendorf
Online-ID: 2p4a653
Referenznummer: 6801#MA49lu
Finde Angebote wie dieses
Hier geht es zu unserem Impressum, den Allgemeinen Geschäftsbedingungen, den Hinweisen zum Datenschutz und nutzungsbasierter Online-Werbung.