
ohne-makler.net - Immobilien selbst vermarkten
Privat von Tim Albeck
Kontaktiere den Anbieter schriftlich, es ist keine Telefonnummer hinterlegt.
Preise & Kosten
Provision für Käufer
provisionsfrei
Abschreibung/Anlage
Denkmalschutz-Afa
Lage
Die Wohnung befindet sich in absoluter Bestlage von Berlin-Mitte, direkt an der berühmten Torstraße - einem der lebendigsten und begehrtesten Hotspots der Hauptstadt. Kaum eine Straße steht so sehr für das moderne, kreative und internationale Berlin wie die Torstraße: hier treffen Szene, Gastronomie, Design, Architektur und...
Die Wohnung
Wohnungslage
2. Geschoss
Bezug
sofort
Wohnanlage
Energie & Heizung
Warum sehe ich diese Anzeige? – Du siehst diese Anzeige basierend auf Ihrer Navigation auf unserer Website und den Suchkriterien, die du verwendet hast.
Energieausweistyp
Verbrauchsausweis
Gebäudetyp
Wohngebäude
Effizienzklasse
D
Endenergieverbrauch
113,00 kWh/(m²·a)
Weitere Energiedaten
Energieträger
Gas
Heizungsart
Etagenheizung
Details
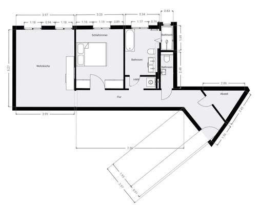
Objektbeschreibung
Diese außergewöhnlich hochwertig sanierte Altbauwohnung befindet sich im 2. Obergeschoss eines denkmalgeschützten Gründerzeithauses aus dem Jahr 1900 in der Torstraße in Berlin-Mitte. Die Wohnung beeindruckt sofort durch ihre spektakulären Deckenhöhen von ca. 360 cm und den restaurierten historischen Gipsstuck, der dem Objekt...
Ausstattung
Keller, Vollbad, Duschbad, Gäste-WC, Parkett, Fliesen, Sonstiges (s. Text)
Bemerkungen:
. Komplettsanierung 2025 - Erstbezug nach Sanierung
. Imposante Deckenhöhe ca. 360 cm mit restaurierten Gipsstuckelementen
. Neu verlegter Eiche-Fischgrätparkett (PARAT, Naturöl/Wachs)
. Hochwertige Gasetagenheizung (neu...
Weitere Informationen
Sonstiges
Heizungsart: Etagenheizung
Energieträger: Gas
Hat dieses Angebot Ihr Interesse geweckt?
Dann freuen wir uns über Ihre Anfrage. Bitte nutzen Sie dafür das Kontaktformular oder rufen Sie uns direkt an, wenn Sie weitere Informationen wünschen oder einen Besichtigungstermin vereinbaren...
Anbieter der Immobilie
ohne-makler.net - Immobilien selbst vermarkten
Humboldtstr. 25 A, 21509 Glinde
Privat von Tim Albeck
Dein Ansprechpartner
Kontaktiere den Anbieter schriftlich, es ist keine Telefonnummer hinterlegt.
Online-ID: 2p3xt57
Referenznummer: 443315
Finde Angebote wie dieses
Hier geht es zu unserem Impressum, den Allgemeinen Geschäftsbedingungen, den Hinweisen zum Datenschutz und nutzungsbasierter Online-Werbung.