
allkauf haus GmbH
Herr Stefan May
+49 ···
Nr. anzeigenPreise & Kosten
Provision für Käufer
provisionsfrei
Lage
Die Doppelhaushälfte befindet sich in einem ruhigen Wohngebiet von Großlangheim, das durch seine gute Infrastruktur überzeugt. Einkaufsmöglichkeiten, Schulen und Kindergärten sind in der Nähe und leicht erreichbar. Zudem bieten die umliegenden Freizeitmöglichkeiten vielfältige Optionen für Erholung und aktive...
Das Haus
Kategorie
Doppelhaushälfte
Bezug
2027
Energie & Heizung
Warum sehe ich diese Anzeige? – Du siehst diese Anzeige basierend auf Ihrer Navigation auf unserer Website und den Suchkriterien, die du verwendet hast.
Weitere Energiedaten
Haustyp
KfW 55
Heizungsart
Fußbodenheizung, Luft-/Wasser-Wärmepumpe
Details
Objektbeschreibung
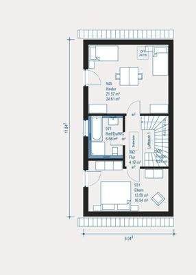
Diese projektiert geplante Doppelhaushälfte in Großlangheim bietet Ihnen mit 3,0 Zimmern auf einer Wohnfläche von 113,64 m² ein ideales Zuhause für Ihre Familie. Das großzügige Grundstück von 290 m² ermöglicht Ihnen Freiraum und Privatsphäre. Auf zwei Etagen finden Sie zwei Schlafzimmer, ein modernes Badezimmer sowie ein...
Ausstattung
Die Ausstattung der Doppelhaushälfte ist gehoben und setzt auf modernste Technik und hochwertige Materialien. Beheizt wird das Haus umweltfreundlich und effizient mittels einer Luft-Wasser-Wärmepumpe, die nicht nur energieeffizient arbeitet, sondern auch den KfW55 Standard erfüllt - ein Garant für niedrigen Energieverbrauch...
Weitere Informationen
Sonstiges
allkauf steht für maximale Sicherheit, kurze Lieferzeiten und garantierte Fertigstellung. Mit über 35 Jahren Erfahrung im Fertighausbau bieten wir Ihnen höchste Qualität und Zuverlässigkeit. Unsere Dienstleistungspakete - VIELBESCHÄFTIGTE, AMBITIONIERTE und HEIMWERKER - geben Ihnen die Flexibilität, den...
Anbieter der Immobilie
allkauf haus GmbH
Ludwig Erhard Str. 2, 68162 Bad Vilbel
Online-ID: 2p3xd53
Referenznummer: 3748-325-kw13-80077
Finde Angebote wie dieses
Hier geht es zu unserem Impressum, den Allgemeinen Geschäftsbedingungen, den Hinweisen zum Datenschutz und nutzungsbasierter Online-Werbung.