Wohnungsgenossenschaft Gartenheim eG

Jessica Michalke

Gemütliche 3-Zimmer Wohnung im schönen Letter!

€ 544,31
Kaltmiete zzgl. NK
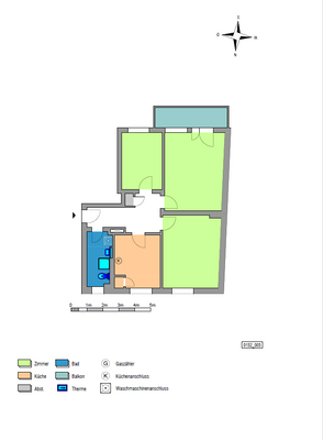
66,46 m²
Wohnfläche ca.
3
Zimmer

Der Anbieter dieses Objekts hat gegenüber der AVIV Germany GmbH als Betreiber dieses Online-Marktplatzes erklärt, nicht als Unternehmer im Sinne des § 1 KSchG zu handeln. Die im Verbraucherschutzrecht der Union verankerten Verbraucherrechte (insbesondere Informationspflichten und Rücktritts- bzw. Widerrufsrechte) finden auf den Vertrag zwischen dem Anbieter des Objekts und Ihnen (dem Interessenten) keine Anwendung.

Gewerblicher Anbieter

Der Anbieter dieses Objekts hat gegenüber der AVIV Germany GmbH als Betreiber dieses Online-Marktplatzes erklärt, als Unternehmer im Sinne des § 1 KSchG zu handeln.

AdresseKurzer Kamp 2
30926 Seelze 
(Letter)
Auf Karte ansehen

Preise & Kosten

Kaltmiete € 544,31 Nebenkosten € 141,93 Heizkosten

nicht in Nebenkosten enthalten

€ 132,92
Warmmiete € 819,16

Lage

Letter – vor den Toren der
Stadt gelegen im Spannungsfeld
von Industrie und Natur.
Ein ruhiges Wohnquartier mit über 10.000 Einwohnern.
Letter zeichnet sich durch ein geringes Verkehrsaufkommen und viele verkehrsberuhigte
Zonen aus. Der Ort verfügt bietet zahleiche Freizeit-Angebote bis hin zum
Hallenbad...

Mehr anzeigen

Die Wohnung

Wohnungslage

1. Geschoss

Bezug

01.05.2026

  • Bad mit Fenster und Dusche
  • Balkon

Wohnanlage

  • Baujahr: 1958

Energie & Heizung

Weitere Energiedaten

Heizungsart

Zentralheizung

Details

Objektbeschreibung

Das Objekt wurde 1958 errichtet und hat insgesamt 8 Mietparteien.

Anbieter der Immobilie

Partner

Wohnungsgenossenschaft Gartenheim eG

im Durchschnitt  4,30  Sterne
(bei 53 Bewertungen)

Hildesheimer Str. 142, 30173 Hannover

Geschäftszeiten
user

Jessica Michalke

Dein Ansprechpartner

Anbieter-Profil Anbieter-Impressum

Online-ID: 2p3re57

Finde Angebote wie dieses

imageimageimage

Hier geht es zu unserem Impressum, den Allgemeinen Geschäftsbedingungen, den Hinweisen zum Datenschutz und nutzungsbasierter Online-Werbung.