
CENTURY 21 Sobko Immobilien Sobko GmbH
Frau Veronika Mandos
004 ···
Nr. anzeigenPreise & Kosten
Provision für Käufer
3,57 % inkl. MwSt. inkl. MwSt.
Lage
Beliebter Stadtteil Mainz-Drais mit hohem Wohnwert
Ruhige, gepflegte Umgebung mit Einfamilienhäusern & kleinen Wohneinheiten
Sehr gute Anbindung an die Mainzer Innenstadt (Auto & ÖPNV)
Bushaltestelle ca. 200 m entfernt
Einkaufsmöglichkeiten ca. 800 m entfernt
Kindergarten ca. 400 m...
Die Wohnung
Kategorie
Maisonette
Bezug
ab sofort
Wohnanlage
Energie & Heizung
Warum sehe ich diese Anzeige? – Du siehst diese Anzeige basierend auf Ihrer Navigation auf unserer Website und den Suchkriterien, die du verwendet hast.
Energieausweistyp
Verbrauchsausweis
Gebäudetyp
Wohngebäude
Baujahr laut Energieausweis
1985
Wesentliche Energieträger
GAS
Gültigkeit
bis 15.12.2035
Effizienzklasse
D
Endenergieverbrauch
102,74 kWh/(m²·a)
Weitere Energiedaten
Energieträger
Gas
Heizungsart
Etagenheizung
Details
Objektbeschreibung
Diese besondere Maisonette-Wohnung vereint ein großzügiges Raumkonzept mit dem Charakter eines eigenen Hauses und bietet zugleich attraktives Potenzial zur individuellen Weiterentwicklung.
Bereits beim Betreten fällt der elegante Marmorboden ins Auge, der den Wohnräumen im Erdgeschoss eine helle und stilvolle...
Ausstattung
Zeitlos eleganter Marmorboden in den Wohnbereichen des Erdgeschosses
Großzügige Fensterflächen für ein helles, offenes Wohnambiente
Einbauküche bereits im Kaufpreis enthalten
Zwei Badezimmer mit Badewanne, separater Dusche und WC
Zusätzliches Gäste-WC im Erdgeschoss
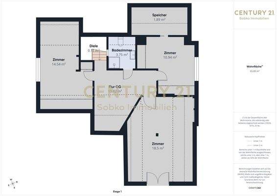
Fünf flexibel nutzbare...
Preisinformation
1 Garagenstellplatz, Kaufpreis: 50,00 EUR
Weitere Informationen
Sonstiges
Haben wir Ihr Interesse geweckt? Dann fordern Sie das ausführliche Exposé sowie einen virtuellen Rundgang and. Vereinbaren Sie auch gerne einen Besichtigungstermin mit uns!
Alle Angaben beruhen auf Aussagen des Eigentümers, für deren Richtigkeit übernimmt CENTURY 21 Sobko Immobilien keine Gewähr. Für...
Anbieter der Immobilie
CENTURY 21 Sobko Immobilien Sobko GmbH
Schießgartenstraße 17, 55116 Mainz
Online-ID: 2p3pm52
Referenznummer: 430
Finde Angebote wie dieses
Hier geht es zu unserem Impressum, den Allgemeinen Geschäftsbedingungen, den Hinweisen zum Datenschutz und nutzungsbasierter Online-Werbung.