
Crozilla.com
Materra Real Estate
+38 ···
Nr. anzeigenPreise & Kosten
Provision für Käufer
Bitte beachte, das Angebot kann bei Vertragsabschluss die Zahlung einer Provision beinhalten. Weitere Informationen erhältst Du vom Anbieter.
Die Wohnung
Wohnungslage
1. Geschoss
Wohnanlage
Details
Objektbeschreibung
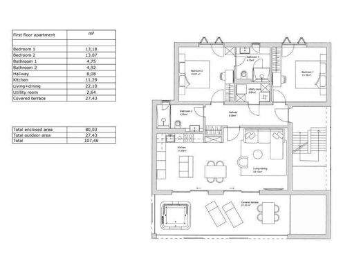
Zum Verkauf steht die Wohnung S2, die sich im ersten Stock eines modernen Neubaus in der Nähe von Primosten befindet. Die Wohnung hat eine Gesamtnutzfläche von 94 m².
Aufteilung und Ausstattung:
Zwei Schlafzimmer
Zwei Badezimmer
Flur
Küche
Wohn- und Esszimmer
Wäscherei
Überdachte...
Weitere Informationen
Stichworte
Anzahl der Schlafzimmer: 2, Anzahl der Badezimmer: 2, 1 Etagen
Anbieter der Immobilie
Crozilla.com
Nova cesta 60, 10000 ZAGREB
Online-ID: 2p3le55
Referenznummer: 19502852_2
Finde Angebote wie dieses
Hier geht es zu unserem Impressum, den Allgemeinen Geschäftsbedingungen, den Hinweisen zum Datenschutz und nutzungsbasierter Online-Werbung.