
allkauf haus Südwest
Frau Elif Younis
+49 ···
Nr. anzeigenPreise & Kosten
Provision für Käufer
Bei Abschluss eines Kaufvertrages wird eine Vermittlungs-/ Nachweisprovision in Höhe von 5,8 % inklusive 19 % Mehrwertsteuer auf den Kaufpreis vom Käufer fällig.
Lage
Ihr neues Zuhause befindet sich in der idyllischen Gemeinde Jockgrim, umgeben von einem freundlichen Wohngebiet. Hier profitieren Sie von einer hervorragenden Infrastruktur mit Einkaufsmöglichkeiten, Schulen und Ärzten in unmittelbarer Nähe. Genießen Sie die Natur und die zahlreichen Freizeitmöglichkeiten, die Ihnen die...
Das Haus
Kategorie
Doppelhaushälfte
Baujahr
2026
Energie & Heizung
Warum sehe ich diese Anzeige? – Du siehst diese Anzeige basierend auf Ihrer Navigation auf unserer Website und den Suchkriterien, die du verwendet hast.
Weitere Energiedaten
Haustyp
KfW 55
Details
Objektbeschreibung
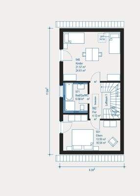
Willkommen in Ihrem neuen Zuhause! Diese charmante Doppelhaushälfte wird speziell nach Ihren Vorstellungen und Wünschen projektiert und bietet Ihnen die Möglichkeit, Ihr Eigenheim ganz nach Ihren Vorstellungen zu gestalten. Auf einer großzügigen Wohnfläche von 113.64 m² verteilen sich auf zwei Etagen insgesamt 3 Zimmer...
Ausstattung
Die Doppelhaushälfte überzeugt durch ihre hochwertige Ausstattung:
- Energieeffizienzwand
- Echtholztreppe
- Luft-Wasser-Wärmepumpe
- Fußbodenheizung
- Be- und Entlüftungsanlage
- 3-fach verglaste Fenster inklusive Rollläden mit Aluminiumlamellen
- Lichte Raumhöhe von 2,75 m
- Inklusive...
Weitere Informationen
Sonstiges
allkauf bietet Ihnen maximale Sicherheit, kurze Lieferzeiten und eine garantierte Fertigstellung. Unsere Dienstleistungspakete ermöglichen es Ihnen, je nach Wunsch selbst aktiv zu werden oder die Profis von allkauf in Anspruch zu nehmen. Zu allen Häusern gehört:
- Energieeffizienzwand
- Echtholztreppe...
Anbieter der Immobilie
allkauf haus Südwest
Am Alten Schwimmbad 5, 66450 Bexbach
Online-ID: 2p3ff55
Referenznummer: 4167-380-kw11-65337
Finde Angebote wie dieses
Hier geht es zu unserem Impressum, den Allgemeinen Geschäftsbedingungen, den Hinweisen zum Datenschutz und nutzungsbasierter Online-Werbung.