

Carl A. Christiansen Immobilien GmbH
Herr Klaus-Michael Würffel
041 ···
Nr. anzeigenPreise & Kosten
Provision für Käufer
3,57 % inkl. der gesetzl. MwSt. Käufercourtage. Mit dem Verkäufer haben wir die gleiche Vereinbarung getroffen
Lage
Top zentrale Lage mit guter Anbindung zu Bahn und Bus, Einkaufsmöglichkeiten und Schulen.
Das Haus
Kategorie
Einfamilienhaus
Geschosse
2 Geschosse
Baujahr
1933
Bezug
nach Abstimmung
Energie & Heizung
Warum sehe ich diese Anzeige? – Du siehst diese Anzeige basierend auf Ihrer Navigation auf unserer Website und den Suchkriterien, die du verwendet hast.
Energieausweistyp
Bedarfsausweis
Gebäudetyp
Wohngebäude
Baujahr laut Energieausweis
2022
Wesentliche Energieträger
Gas-Hybrid Wärmepumpe
Gültigkeit
26.06.2025 bis 26.06.2035
Effizienzklasse
C
Endenergiebedarf
79,80 kWh/(m²·a)
Weitere Energiedaten
Haustyp
Massivhaus
Energieträger
Gas
Heizungsart
Luft-/Wasser-Wärmepumpe, Zentralheizung
Details
Objektbeschreibung
Objektbeschreibung
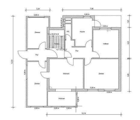
Das Grundstück ist bebaut mit einem 2-geschossigem Gebäude, Baujahr 1933, ca. 175 m² Wfl., Vollkeller und wurde als 2-Familienhaus genutzt. Jeweils eine Wohnung im Erd- und Obergeschoss. Die Deckenhöhe im EG beträgt 3 m. Im OG 2,80 m. Das Gebäude wurde in den letzten 5 Jahren, umfassend modernisiert...
Weitere Informationen
Sonstiges
Wir übersenden Ihnen gern ein ausführliches Exposé. Bitte geben Sie in der Anfrage Ihre vollständigen Kontaktdaten mit Telefon-Nr. auf.
Der Makler-Vertrag mit uns kommt durch schriftliche Vereinbarung oder durch die Inanspruchnahme unserer Maklertätigkeit auf der Basis des Objekt-Exposés und seiner...
Anbieter der Immobilie
Carl A. Christiansen Immobilien GmbH
Alter Postweg 111, 21220 Seevetal/Maschen

Online-ID: 2p3dp53
Referenznummer: A1606-2
Finde Angebote wie dieses
Hier geht es zu unserem Impressum, den Allgemeinen Geschäftsbedingungen, den Hinweisen zum Datenschutz und nutzungsbasierter Online-Werbung.